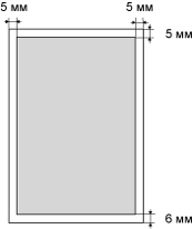
Область печати
Затененная область на рисунке на следующей странице представляет область печати.
Бумага, кроме конвертов
Конверт
Обратите внимание, что показанные на рисунке поля приводятся для справки. Фактический размер полей может отличаться.
»
Технические характеристики
»
Бумага
»
Область печати
1350-03K