設置場所のご注意
次のような場所への設置は避けてください
低温、低湿または高温、高湿の場所
水道の蛇口、湯沸器、加湿器、エアコン、ヒーター、ストーブなどの近く
直射日光の当たる場所
やむをえないときはカーテンなどで遮光してください。カーテンが製品の通気口をふさいだり、電源コードや電源プラグにかぶさらないように注意してください。
換気の悪い場所
使用中の本製品からは、オゾンなどが発生しますが、その量は人体に影響を及ぼさない程度です。ただし、換気の悪い部屋で長時間使用するときや、大量にプリントするときには、快適な作業環境を保つため、部屋の換気をするようにしてください。
ホコリ、チリなどの多い場所
アンモニアガスの発生する場所
アルコール、シンナーなどの近く
振動の多い場所
床や土台などが不安定な場所
温度が急に変化する場所
冷えきった部屋を急激に暖めたときなど、本製品内部に水滴がつき(結露現象)、画像が著しく損なわれたり、原稿が正しく読み取られなかったり、プリント画像が写らなかったりすることがあります。
コンピューターなどの電子機器や精密機械の近く
電気的な原因や動作時の振動により、電子機器、精密機器などに悪影響を与えることがあります。
テレビ、ラジオなどの電子機器の近く
テレビやラジオ、オーディオ機器に、画面のチラつきや雑音の発生などの受信障害が生じることがあります。本製品とは別系統の電源を使用し、離して設置してください。
電話回線について
電話回線の抵抗値と本製品の抵抗値の合計が1700Ω を超える場合など、電話回線や地域などの条件によって通信できないことがあります。このようなときには、お買い上げの販売店または担当サービスにご連絡ください。
本体固定用のストッパーについて
一度設置したあとは、本体固定用のストッパーは外さないでください。
カセットや本体ユニットをすべて引き出した状態で、機械前部に荷重をかけると、機械が前方に倒れる恐れがあり大変危険です。ストッパーは必ず固定しておいてください。
海抜3000m以上の高地
ハードディスクを搭載している製品は、高地(海抜3000m以上)で使用すると、正常に動作できない場合があります。
電源は安全な場所から
電源は、100V(90V~110V)、15A以上のコンセントに本製品の電源プラグを接続してください。
本製品への電源供給が安全であること、安定電圧であることを確認してください。
同じコンセントには、ほかの電気製品を接続しないでください。
テーブルタップなどによるタコ足配線はしないでください。火災の原因になることがあります。
電源コードを踏みつけたり、ホチキスなどで固定したり、重いものをのせたりしないでください。コードがいたみ、そのままご使用を続けると、火災や感電などの事故の原因になります。
電源コードが引っ張られた状態にしないでください。電源プラグが緩んで接続が不完全になると発熱し、火災の原因になることがあります。
電源コネクタが接続される本製品の差込口にストレスが強くかかると、本製品の内部で断線や接触不良が発生し、故障や火災の原因になることがあります。次のような取り扱いは避けてください。
電源コネクタを頻繁に抜き差しする
電源コードに足を引っ掛ける
電源コードが電源コネクタ付近で曲げられ、本製品の差込口に継続的なストレスがかかっている
電源コネクタに強い衝撃を加える
アース線の接続を忘れずに
感電防止のため必ずアース線を接続してください。
接地接続は必ず、電源プラグを電源につなぐ前に行ってください。また、接地接続を外すときは、必ず電源プラグを電源から抜いて行ってください。
アース線を接続してよいもの
電源コンセントのアース端子
接地工事(第D種)が行われているアース端子
アース線を接続してはいけないもの
ガス管(引火や爆発の危険があります。)
水道管(配管途中がプラスチックになっていることがあり、そのときはアースの役目を果たしません。ただし水道局がアース対象物として許可した水道管にはアース線を接続できます。)
電話線のアースや避雷針(落雷のときに大量の電流が流れ危険です。)
移動の際はご連絡を
本製品の移動は、お客様ご自身で行わず、必ず担当サービスにご連絡ください。
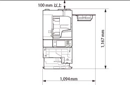
設置スペースにはゆとりを
本製品の左右と前面には、操作に十分なスペースをとってください。
オプション未装着時
インナーフィニッシャー・D1+ペーパーデッキユニット・B2装着時

インナーフィニッシャー・D1+内蔵2穴パンチャー・A1+ペーパーデッキユニット・B2装着時

中綴じフィニッシャー・G1+外付け2穴パンチャー・B2+バッファパスユニット・H1+ペーパーデッキユニット・B2装着時
