Installationsort

Auswählen und Konfigurieren eines Installationsortes
Bodenstruktur
Platzbedarf bei der Aufstellung
Installationsumgebung
Stromversorgung

Auswählen und Konfigurieren eines Installationsortes

Installationsort
Direktes Sonnenlicht
Beleuchtung
Zustellungsweg

Installationsort

Stellen Sie das Gerät nicht an folgenden Orten auf.
Orte, an denen sich eine beträchtliche Menge Staub ansammelt.
Orte in der Nähe von flüchtigen oder entflammbaren Materialien wie Alkohol oder Farbverdünner.
Orte, an denen das Gerät starken Temperaturschwankungen ausgesetzt ist.
Wenn der Raum, in dem das Gerät aufgestellt ist, kalt ist, sich aber schnell erwärmt, können sich im Inneren des Geräts Wassertröpfchen (Kondensation) bilden. Dies kann dazu führen, dass sich die Qualität des kopierten Bildes merklich verschlechtert, dass ein Original nicht richtig gescannt werden kann oder dass die Kopien überhaupt kein Druckbild aufweisen.
Orte in der Nähe von Computern oder anderen elektronischen Präzisionsgeräten.
Elektrische Störungen und Vibrationen, die das Gerät während des Druckens erzeugt, können den Betrieb solcher Geräte beeinträchtigen.
Orte in der Nähe von Fernsehern, Radios oder ähnlichen elektronischen Geräten.
Das Gerät kann den Empfang von Ton- und Bildsignalen stören. Stecken Sie den Netzstecker in eine dafür vorgesehene Steckdose, und halten Sie so viel Abstand wie möglich zwischen dem Gerät und anderen elektronischen Geräten ein.
Orte in der Nähe von Ultraschallbefeuchtern oder Sprinklerbefeuchtern.
Achten Sie bei der Installation des Geräts an den folgenden Orten auf die Installationsanordnung und die Betriebsumgebung.
Orte in der Nähe von Geräten (*), die flüchtige Substanzen freisetzen.
Flüchtige Substanzen können ins Innere dieses Geräts gelangen und die Bildqualität beeinträchtigen.
Wenn Sie über solche Geräte verfügen, wenden Sie sich vor der Verwendung an Ihren autorisierten Canon-Händler oder Kundendienst vor Ort.
*Beispiel: Geräte, die Heißkleber verwenden (Buchbindemaschinen oder Laminiergeräte), Aromageräte, Diazokopierer usw.
Installieren mehrerer Geräte
Wenn Sie mehrere Geräte nebeneinander aufstellen, wenden Sie sich vor der Installation an Ihren autorisierten Canon-Händler oder Kundendienst vor Ort, um sicherzustellen, dass der Lufteinlassbereich eines Geräts nicht in die Nähe des Auslasses eines anderen Geräts gelangt.
Entfernen Sie nicht die Nivellierfüße.
Entfernen Sie die Nivellierfüße nicht nach der Installation des Geräts.
Wenn Sie die Vorderseite des Geräts belasten, während Kassetten, Papiermagazine oder andere Einheiten des Geräts herausgezogen werden, kann das Gerät nach vorne kippen. Um dies zu verhindern, stellen Sie sicher, dass die Nivellierfüße an ihrem Platz sind.

Direktes Sonnenlicht

Stellen Sie das Gerät nicht so auf, dass es direktem Sonnenlicht ausgesetzt wird.
Wenn dies unvermeidlich ist, verwenden Sie Vorhänge, um das Gerät abzuschirmen. Achten Sie darauf, dass die Vorhänge nicht die Belüftungsöffnungen oder Lüftungsschlitze des Geräts blockieren oder das Netzkabel bzw. den Stromanschluss beeinträchtigen.

Beleuchtung

Wir empfehlen, das Gerät an einem Ort mit mindestens 500 Lux (75 cm über dem Boden) für normalen Betrieb und Wartung aufzustellen.

Zustellungsweg

Informationen zu Größe und Gewicht des imagePRESS C270 / C265 und seiner Optionen finden Sie unter Größen, Gewichte und erforderliche Korridorbreite zum Drehen jedes Geräts. Vergewissern Sie sich, dass der Platz zum Bewegen des Geräts ausreicht und die erforderliche Bodenstärke vorhanden ist.

Bodenstruktur

Bodenstruktur
Standardwerte der Bodenstruktur
Messmethoden für den jeweiligen Standardwert

Bodenstruktur

Der Boden, auf dem dieses Gerät aufgestellt werden soll, muss eine Bodenbelastung von mindestens 400 kg/m2 aufweisen. Auch wenn der Boden diese Bodenbelastung nicht aufweist, kann das Gerät in der Nähe eines Pfeilers oder Balkens aufgestellt werden. Sprechen Sie mit Ihrem Bauunternehmer, bevor Sie das Gerät aufstellen.
Das Gewicht des Geräts wird in erster Linie über die Justiervorrichtung und die Räder auf den Boden übertragen. Wir empfehlen die Verwendung einer Matte zur Verteilung des Gewichts.
Wir empfehlen auch die Verwendung einer Matte, wenn das Gerät auf Teppich- oder Holzböden aufgestellt wird. Informationen über Matten erhalten Sie bei Ihrem Händler.
Stellen Sie das Gerät nicht auf einem instabilen Boden oder einer instabilen Plattform auf.

Standardwerte der Bodenstruktur

Achten Sie darauf, dass imagePRESS C270 / C265 und die optionalen Geräte auf einem Boden installiert werden, der den folgenden Standards entspricht.
Bodensteifigkeit
Die Senkung des Bodens darf nicht mehr als 4 mm betragen, wenn eine Last von 400 kg/m2 auf den Boden aufgebracht wird.
Wenn dies nicht eingehalten wird, verwenden Sie partiell Bodenplatten.
* Verwenden Sie die Bodenplatten, wenn das Gerät auf einer Matte, einem Holzboden oder einem Gummiboden aufgestellt wird.
* Stapeln Sie die Bodenplatten je nach Senkungsgrad des Bodens, um die Höhenungleichheit der Fugen zu vermindern.
Bodenebenheit
Die Ebenheit in einem beliebigen rechteckigen Bereich von 510 mm x 500 mm darf nicht mehr als 4 mm abweichen.
Vertikaler Bodenabstand
Der vertikale Abstand zwischen zwei beliebigen Punkten im Abstand von 1.000 mm darf höchstens 3 mm betragen.
(Der Senkungsgrad des Bodens ist hier nicht enthalten.)
Bodenneigung
Die Neigung zwischen zwei beliebigen Punkten im Abstand von 1.600 mm darf höchstens 3 mm betragen.

Messmethoden für den jeweiligen Standardwert

Die Standardwerte werden nach folgenden Verfahren gemessen.
Verwenden Sie eine Eisenplatte als Bodenplatte, die 890 mm x 487,5 mm groß, 13 kg schwer und 4 mm dick ist.
Bodenwiderstandsfähigkeit
Erkundigen Sie sich beim Bauunternehmen des Gebäudes, in dem das Gerät aufgestellt werden soll, nach den Spezifikationen der Bodenwiderstandsfähigkeit.
Bodensteifigkeit
Bereiten Sie eine Bodenplatte vor, und legen Sie sie an den Ort, an dem das Gerät aufgestellt werden soll. Messen Sie den Senkungsgrad des Bodens, wenn zwei Erwachsene (ca. 150 kg) auf die Platte steigen. Ermitteln Sie anhand dieser Messung durch eine Proportionalrechnung, wie stark der Boden bei der Aufstellung des Geräts einsinkt.
 
Berechnungsmethode
Jeder Parameter wird wie folgt spezifiziert:
t: Höhe vom Boden bis zur Oberfläche der Bodenplatte
Δt: Höhe vom Boden bis zur Oberfläche der Bodenplatte, wenn die Last aufgebracht wird
Ts (mm/kgf): Konstante des veranschlagten Senkungsgrads des Bodens
Ts (ME): Senkungsgrad des Bodens, auf dem dieses Gerät installiert ist
Berechnen Sie zunächst die Konstante des veranschlagten Senkungsgrads des Bodens.
Ts (mm/kgf) = (t - Δt)/150
Veranschlagen Sie anhand dieser Konstante den Senkungsgrad des Bodens, auf dem das Gerät installiert ist.
Ts (ME) = (272 (kgf)/2) x Ts (mm/kgf)
Beispiel
Im Fall von
t = 4 mm Δt = 3 mm
Die Konstante des veranschlagten Senkungsgrads des Bodens wird wie folgt berechnet.
(4 - 3)/150 = 0,006
In diesem Beispiel beträgt der veranschlagte Senkungsgrad des Bodens, auf dem das Gerät installiert ist, 0,816 mm, wobei die folgende Formel gilt.
Ts (ME) = (272 (kgf)/2) x 0,006 = 0,816
Wenn Sie den optionalen POD Lite A3-Papiermagazin C (1x3.500) am Hauptgerät anbringen, muss die Installationsposition des POD Lite A3-Papiermagazin C (1x3.500) niedriger sein als die des Hauptgeräts. Wie bei der obigen Beschreibung muss der Unterschied zwischen dem veranschlagten Senkungsgrad des Bodens, auf dem das Hauptgerät installiert ist, und dem des Bodens, auf dem das POD Lite A3-Papiermagazin C (1x3.500) installiert ist, 4 mm oder weniger betragen. Wenn die Installationsposition des POD Lite A3-Papiermagazin C (1x3.500) höher ist als die der Haupteinheit, legen Sie die Bodenplatten nur unter die Haupteinheit, um den Unterschied zu verringern.
Bodenebenheit
Legen Sie eine Bodenplatte auf den Boden, auf dem das Gerät installiert werden soll, und platzieren Sie die einfache Wasserwaage in ihrer Mitte. Um die Bodenplatte waagerecht auszurichten, legen Sie einige Abstandshalter (Münzen) unter A oder B der Bodenplatte, wie in der Abbildung unten gezeigt. Berechnen Sie die Ebenheit des Bodens anhand der Dicke der Abstandshalter und ihrer Anzahl.
Berechnungsmethode
Verwenden Sie Münzen, welche die gleiche Dicke wie ein Abstandshalter haben.
Jeder Parameter wird wie folgt spezifiziert:
t (mm): Dicke des Abstandshalters
a: Anzahl der unter A eingefügten Abstandshalter
b: Anzahl der unter B eingefügten Abstandshalter
Wenn a > b ist, wird die Ebenheit des Bodens nach folgender Formel berechnet.
t x a (mm)
Beispiel
Münzen mit einer Dicke von 1 mm werden als Abstandshalter verwendet.
Wenn unter A zwei Abstandshalter eingefügt werden und unter B nichts, um die Bodenplatte horizontal auszurichten, beträgt die Ebenheit des Bodens 2 mm.
Vertikaler Bodenabstand
(Diese Methode wird verwendet, wenn
im Boden eine Stufe vorhanden ist.)
Nehmen Sie zwei Bodenplatten, und platzieren Sie sie nebeneinander auf dem Boden, auf dem das Gerät aufgestellt werden soll. Richten Sie eine Bodenplatte entsprechend der Messmethode für die "Bodenebenheit" waagerecht aus. Richten Sie dann die andere Bodenplatte auf dieselbe Weise waagerecht aus. Messen Sie anschließend den Höhenunterschied zwischen den beiden Bodenplatten.
Achtung bei der Messung
Legen Sie die beiden Bodenplatten mit den Längsseiten zueinander ausgerichtet auf.
Bodenneigung
(Diese Methode wird angewendet, wenn der Boden leicht geneigt ist.)
Nehmen Sie zwei Bodenplatten, und platzieren Sie sie nebeneinander auf dem Boden, auf dem das Gerät aufgestellt werden soll. Richten Sie eine Bodenplatte entsprechend der Messmethode für die "Bodenebenheit" waagerecht aus. Legen Sie dann die Abstandshalter (Münzen) unter die andere Bodenplatte, so dass die Platte waagerecht ausgerichtet wird und ihre Höhe mit der Höhe der Platte übereinstimmt, die Sie zuerst platziert haben. In diesem Fall setzen Sie die Abstandshalter an einer beliebigen Stelle der Bodenplattenkante ein. Messen Sie die Neigung des Bodens anhand der Dicke der Abstandshalter, die am weitesten vom Referenzpunkt (dem Punkt, der als Richtwert für die Höhe bestimmt wurde) entfernt sind.
(Beachten Sie die Abbildung unten.)
Achtung bei der Messung
Legen Sie die beiden Bodenplatten mit den Längsseiten zueinander ausgerichtet auf.
Berechnungsmethode
Verwenden Sie Münzen, welche die gleiche Dicke wie ein Abstandshalter haben. Jeder Parameter wird wie folgt angegeben.
t (mm): Dicke des Abstandshalters
a: Anzahl der Abstandshalter
Die Ebenheit des Bodens wird nach folgender Formel berechnet.
S = t x a (mm)
Beispiel
Münzen mit einer Dicke von 1 mm werden als Abstandshalter verwendet. Werden drei Abstandshalter unter der vom Referenzpunkt am weitesten entfernten Position eingesetzt, beträgt die Bodenneigung 3 mm (= 1 mm x 3).

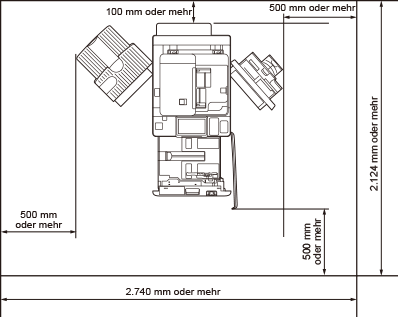
Platzbedarf bei der Aufstellung

Erforderliche Abstände bei der Aufstellung
Größen, Gewichte und erforderliche Korridorbreite zum Drehen jedes Geräts

Erforderliche Abstände bei der Aufstellung

Sorgen Sie für ausreichend Platz auf jeder Seite des Geräts, damit Sie ungehindert arbeiten können.
Außerdem ist ein Abstand von 5 mm zwischen den einzelnen Geräten erforderlich, um sie zu verbinden.

Standardkonfiguration (Minimum)

Wenn Kopienauffang R angebracht ist:

Platzbedarf auf der Rückseite

Achten Sie darauf, das Gerät mindestens 100 mm von der Wandoberfläche entfernt aufzustellen, damit Arbeiten auf der Rückseite des Geräts nicht behindert werden.
Stellen Sie sicher, dass je nach der Optionskonfiguration des Geräts folgender Platz vorhanden ist.
Wenn Zufuhreinheit für die Stapelanlage D und Banner Tray B angebracht sind: 200 mm oder mehr
Wenn eine der unter "Konfiguration mit allen Optionen (Maximum)" angegebenen Ausgabe- oder Zufuhroptionen angebracht ist: 800 mm oder mehr

Platzbedarf auf Vorderseite und linker/rechter Seite

Stellen Sie sicher, dass das Gerät in einem Abstand von mindestens 500 mm von der Wandoberfläche aufgestellt wird, um Platz für Wartungsarbeiten zu gewährleisten
Stellen Sie sicher, dass je nach der Optionskonfiguration des Geräts folgender Platz vorhanden ist.
Wenn eine der unter "Konfiguration mit allen Optionen (Maximum)" angegebenen Ausgabe- oder Zufuhroptionen angebracht ist: 1.000 mm oder mehr

Konfiguration mit allen Optionen ( Maximum)

Für die folgenden Gerätekonfigurationen
POD Lite A3-Papiermagazin C (1x3.500)
Zuschiesseinheit R
Professioneller Multifunktions Puncher C
Falzeinheit K
Broschüren Finisher AG
Broschüren-Trimmer G

Platzbedarf auf der Rückseite

Achten Sie darauf, das Gerät mindestens 800 mm von der Wandoberfläche entfernt aufzustellen, damit Arbeiten auf der Rückseite des Geräts nicht behindert werden.
Stellen Sie sicher, dass je nach der Optionskonfiguration des Geräts folgender Platz vorhanden ist.
Wenn keine der unter "Konfiguration mit allen Optionen (Maximum)" angegebenen Ausgabe- oder Zufuhroptionen angebracht ist: 500 mm oder mehr

Platzbedarf auf Vorderseite und linker/rechter Seite

Stellen Sie sicher, dass das Gerät in einem Abstand von mindestens 1.000 mm von der Wandoberfläche aufgestellt wird, um Platz für Wartungsarbeiten zu gewährleisten.
Stellen Sie sicher, dass je nach der Optionskonfiguration des Geräts folgender Platz vorhanden ist.
Wenn keine der unter "Konfiguration mit allen Optionen (Maximum)" angegebenen Ausgabe- oder Zufuhroptionen angebracht ist: 500 mm oder mehr

Größen, Gewichte und erforderliche Korridorbreite zum Drehen jedes Geräts

Produktname
Abmessungen (B x T x H)
Gewicht
Für die Drehung erforderliche Korridorbreite*1
imagePRESS C270 / C265
689 mm x 937 mm x 1.185 mm
Ca. 255 kg
(ohne Tonerpatrone)
1.663 mm
POD Lite A3-Papiermagazin C (1x3.500)
656 mm x 686 mm x 570 mm
Ca. 68 kg
1.449 mm
A4-Papiermagazin E (1x3.500)
363 mm x 630 mm x 572 mm
Ca. 34 kg
1.227 mm
Finisher AG
800 mm* x 792 mm x 1.239 mm**
*Wenn die Verlängerung erweitert ist: 890 mm
*Wenn das Banner Tray B enthalten ist: 1.136 mm
*Wenn das Finisher Long Sheet Catch Tray-B enthalten ist: 1.490 mm
**Wenn das Banner Tray B enthalten ist: 1.317 mm
**Wenn das Finisher Long Sheet Catch Tray-B enthalten ist: 1.317 mm
Ca. 130 kg
1.626 mm
Broschüren Finisher AG
800 mm* x 792 mm x 1.239 mm**
*Wenn die Verlängerung erweitert ist: 1.060 mm
*Wenn das Banner Tray B enthalten ist: 1.136 mm
*Wenn das Finisher Long Sheet Catch Tray-B enthalten ist: 1.490 mm
**Wenn das Banner Tray B enthalten ist: 1.317 mm
**Wenn das Finisher Long Sheet Catch Tray-B enthalten ist: 1.317 mm
Ca. 180 kg
1.626 mm
Zuschiesseinheit R
746 mm x 793 mm x 1.407 mm
Ca. 61 kg
1.589 mm
Falzeinheit K
336 mm x 793 mm x 1.190 mm
Ca. 71 kg
1.361 mm
Broschüren-Trimmer G
1.835 mm x 794 mm x 1.044 mm
(ohne Förderband, einschließlich Ausgabefach)
2.094 mm x 794 mm x 1.044 mm
(ohne Förderband, einschließlich Ausgabefach)
Ca. 152 kg
2.499 mm
Professioneller Multifunktions Puncher C
445 mm x 795 mm x 1.040 mm
Ca. 102 kg
1.411 mm
Finisher AC
527 mm* x 623 mm x 1.099 mm
*Wenn die Verlängerung und das Drehfach erweitert sind: 656 mm
*Wenn das Banner Tray B enthalten ist: 774 mm
Ca. 36 kg
1.316 mm
Broschüren Finisher AC
527 mm* x 623 mm x 1.099 mm
*Wenn die Verlängerung und das Drehfach erweitert sind: 656 mm
*Wenn das Banner Tray B enthalten ist: 774 mm
Ca. 60 kg
1.316 mm
Zuschiess- und Falzeinheit K
662 mm x 679 mm x 1.242 mm
Ca. 76 kg
1.448 mm
Kopienauffang R
244 mm* x 382 mm x 175 mm**
*Wenn die Verlängerung erweitert ist: 420 mm
*Wenn das Banner Tray B enthalten ist: 711 mm
**Wenn das Banner Tray B enthalten ist: 402 mm
Ca. 1,1 kg
(ohne Banner Tray B)
-
Kontrollzähler
88 mm x 96 mm x 40 mm
(ohne Befestigungskit und Kabel)
Ca. 200 g
(einschließlich Befestigungskit und Kabel)
-
*1 Die zum Drehen erforderliche Mindestbreite ist die diagonale Länge des Geräts (der Ausrüstung) + ca. 500 mm.

Installationsumgebung

Temperatur- und Feuchtigkeitsbedingungen
Temperaturgradient
Belüftung
Höhenbeschränkungen

Temperatur- und Feuchtigkeitsbedingungen

Stellen Sie das Gerät nicht an Orten mit hoher oder niedriger Hitze und Luftfeuchtigkeit auf, beispielsweise an Orten mit einem Wasserhahn, einem Warmwasserbereiter, einem Luftbefeuchter, einer Klimaanlage, einer Heizung oder einem Ofen.
Während des Betriebs beträgt der zulässige Luftfeuchtigkeitsbereich 15 bis 60 % (bei einer Raumtemperatur von 20 bis 27 °C).
Es besteht die Gefahr, dass die Papierzufuhr und die Bildqualität beeinträchtigt werden, wenn das Gerät an einem Ort verwendet wird, der diese Spezifikationen nicht erfüllt.
Der zulässige Luftfeuchtigkeitsbereich für die Papierlagerung beträgt 15 bis 60 % (bei einer Raumtemperatur von 20 bis 27 ˚C). Die Lagerung von Papier an einem Ort, der diese Spezifikationen nicht erfüllt, kann die Papierzufuhr und die Bildqualität beeinträchtigen.

Temperaturgradient

Die Verwendung einer Klimaanlage im Winter oder plötzliche Temperaturschwankungen können sich nachteilig auf die Bildpositionierung auswirken, da sich das Papier wellen oder zusammenziehen kann und es zu einer Fehlfunktion des Geräts aufgrund von Kondensation kommen kann. Um diese Probleme zu vermeiden, steuern Sie den Temperaturgradienten so, dass er 10 °C/h nicht überschreitet.

Belüftung

Stellen Sie sicher, dass am Aufstellungsort des Geräts ein Luftaustausch von mindestens zweimal pro Stunde und ein Raum von mindestens 30 m3 vorhanden ist.
Dieses Gerät erzeugt bei normalem Gebrauch eine geringe Menge an Ozon etc. Obwohl die Empfindlichkeit gegenüber Ozon etc. variieren kann, ist diese Menge nicht schädlich. Ozon etc. kann sich bei längerem Gebrauch oder langen Produktionsläufen stärker bemerkbar machen, insbesondere in schlecht belüfteten Räumen. Es wird empfohlen, den Raum in den Bereichen, in denen das Gerät betrieben wird, ausreichend zu belüften, um eine angenehme Arbeitsumgebung zu schaffen. Außerdem sollte das Gerät nicht so aufgestellt werden, dass die Abluft direkt auf Personen trifft.

Höhenbeschränkungen

Installieren Sie dieses Gerät nicht in Höhenlagen über 4.000 m.
*Luftdruck in 4.000 m Höhe: 607,8 hPa (Referenzwert)

Stromversorgung

Bedingungen für die Stromversorgung
Maximaler Stromverbrauch

Bedingungen für die Stromversorgung

Verwenden Sie diese Komponenten innerhalb der unten aufgeführten Stromversorgungsspezifikationen.
Die Stromversorgung für nicht in der Tabelle aufgeführte Komponenten wird von dem imagePRESS C270 / C265 oder den anderen Komponenten bereitgestellt.
Produktname
Stromversorgung
Spezifikationen des Netzkabels/
Netzsteckers
Länge des
Netzkabels
imagePRESS C270
220-240 V, 50/60 Hz, 11 A
CEE 7/7
2.000 mm
imagePRESS C265
220-240 V, 50/60 Hz, 10 A
CEE 7/7
2.000 mm
POD Lite A3-Papiermagazin C (1x3.500)
220-240 V, 50/60 Hz, 1,2 A
CEE 7/7
2.000 mm
A4-Papiermagazin E (1x3.500)
Von der Haupteinheit
-
-
Finisher AG
220-240 V, 50/60 Hz, 8 A
CEE 7/7
2.000 mm
Broschüren Finisher AG
220-240 V, 50/60 Hz, 8 A
CEE 7/7
2.000 mm
Zuschiesseinheit R
100-240 V, 50/60 Hz, 1,0 A
CEE 7/7
2.000 mm
Falzeinheit K
Vom Finisher
-
-
Broschüren-Trimmer G
Vom Finisher
-
-
Locheinheit BT
Vom Finisher
-
-
Locheinheit BU
Vom Finisher
-
-
Professioneller Multifunktions Puncher C
230 V, 50 Hz, 2,0 A
CEE 7/7
2.400 mm
Finisher AC
Von der Haupteinheit
-
-
Broschüren Finisher AC
Von der Haupteinheit
-
-
Zuschiess- und Falzeinheit K
100-240 V, 50/60 Hz, 1,0 A
CEE 7/7
2.000 mm
Lochereinheit A (2/4-Loch)
Vom Finisher
-
-
Lochereinheit A (4-Loch)
Vom Finisher
-
-

Maximaler Stromverbrauch

Der maximale Stromverbrauch des imagePRESS C270 / C265 und anderer Komponenten ist unten aufgeführt.
Produktname
Maximaler Stromverbrauch
imagePRESS C270
2.500 W oder weniger *1
imagePRESS C265
2.000 W oder weniger *1
POD Lite A3-Papiermagazin C (1x3.500)
480 W oder weniger
A4-Papiermagazin E (1x3.500)
Enthalten in der Haupteinheit
Finisher AG
500 W oder weniger
Broschüren Finisher AG
500 W oder weniger
Zuschiesseinheit R
120 W oder weniger
Falzeinheit K
Enthalten im Finisher
Broschüren-Trimmer G
300 W oder weniger
Locheinheit BT
Enthalten im Finisher
Locheinheit BU
Enthalten im Finisher
Professioneller Multifunktions Puncher C
550 W
Finisher AC
Enthalten in der Haupteinheit
Broschüren Finisher AC
Enthalten in der Haupteinheit
Zuschiess- und Falzeinheit K
120 W oder weniger
Lochereinheit A (2/4-Loch)
Enthalten im Finisher
Lochereinheit A (4-Loch)
Enthalten im Finisher
*1 Einschließlich aller optionalen Komponenten, die über das Hauptgerät mit Strom versorgt werden
CW8C-008