Ubicación de instalación

Selección y configuración de una ubicación de instalación
Estructura de suelo
Espacio de instalación
Entorno de instalación
Suministro eléctrico

Selección y configuración de una ubicación de instalación

Ubicación de instalación
Luz solar directa
Iluminación
Vía de entrega

Ubicación de instalación

Evite instalar la máquina en las siguientes ubicaciones.
Ubicaciones en las que se acumule una cantidad considerable de polvo.
Ubicaciones cercanas a materiales volátiles o inflamables, como el alcohol o el disolvente.
Ubicaciones en las que la máquina esté expuesta a cambios rápidos de temperatura.
Si la sala en la que está instalada la máquina es fría pero se calienta rápidamente, es posible que se acumulen gotas de agua (condensación) dentro de la máquina. Esto puede provocar una notable degradación de la calidad de la imagen copiada, la incapacidad de leer correctamente un original o que las copias no tengan ninguna imagen impresa.
Ubicaciones cerca de ordenadores u otros equipos electrónicos de precisión.
Las interferencias eléctricas y las vibraciones generadas por la máquina durante la impresión pueden afectar negativamente al funcionamiento de estos equipos.
Ubicaciones cerca de televisores, radios o equipos electrónicos similares.
La máquina podría interferir en la recepción de la señal de sonido e imagen. Inserte el enchufe en una toma de corriente específica y mantenga el mayor espacio posible entre la máquina y otros equipos electrónicos.
Ubicaciones cerca de humidificadores ultrasónicos o por aspersión.
Preste atención al diseño de la instalación y el entorno operativo cuando instale la máquina en las siguientes ubicaciones.
Ubicaciones cercanas a equipos (*) que liberen sustancias volátiles.
Las sustancias volátiles pueden entrar en la máquina y afectar a la calidad de la imagen.
Si utiliza este tipo de equipos, consulte a su distribuidor local autorizado de Canon o al representante del servicio técnico antes de utilizarlos.
*Ejemplo: equipos que utilicen adhesivos de fusión en caliente (encuadernadoras o plastificadoras), equipos de aromatización, copiadoras de diazo, etc.
Instalación de varias máquinas
Si instala varias máquinas cerca, consulte a su distribuidor local autorizado de Canon o al representante del servicio técnico sobre el diseño de la instalación antes de llevarla a cabo, de modo que la sección de entrada de aire de una máquina no quede cerca de la sección de salida de otras máquinas.
No retire las patas de nivelación.
No retire las patas de nivelación una vez instalada la máquina.
Si coloca peso en la parte delantera de la máquina mientras se extraen los casetes, los depósitos de papel o las unidades del interior de la máquina, esta puede caerse hacia adelante. Para evitarlo, asegúrese de que las patas de nivelación estén en su sitio.

Luz solar directa

Evite instalar la máquina bajo la luz solar directa.
Si esto resulta inevitable, utilice cortinas para dar sombra a la máquina. Asegúrese de que las cortinas no bloquean las ranuras de ventilación o rejillas de la máquina, ni interfieren con el cable eléctrico o de alimentación.

Iluminación

Recomendamos instalar la máquina en una ubicación con al menos 500 lux (75 cm por encima del suelo) para un funcionamiento y mantenimiento normales.

Vía de entrega

Para obtener información sobre el tamaño y gramajes de imagePRESS C270 / C265, así como de sus opciones, consulte Tamaños, gramajes y ancho de pasillo necesario para girar cada dispositivo. Compruebe que haya suficiente espacio para moverse y que el suelo sea lo suficientemente resistente para la entrega de la máquina.

Estructura de suelo

Estructura de suelo
Valores estándar de la estructura del suelo
Métodos de medición para cada valor estándar

Estructura de suelo

El suelo en el que se instalará la máquina debe tener una carga mínima de 400 kg/m2. Incluso si el suelo no tiene dicho nivel de carga, la máquina puede instalarse cerca de una columna o una viga. Consulte con su empresa de construcción antes de instalar la máquina.
El peso de la máquina se centrará principalmente sobre el suelo a través del ajustador y las ruedas. Recomendamos el uso de una esterilla para distribuir el peso.
También recomendamos el uso de una esterilla cuando se instale la máquina sobre un suelo de moqueta o madera. Para obtener información sobre las esterillas, póngase en contacto con su distribuidor.
No instale la máquina sobre un suelo o plataforma inestable.

Valores estándar de la estructura del suelo

Asegúrese de instalar imagePRESS C270 / C265 y los equipos opcionales sobre un suelo que cumpla la siguiente norma.
Rigidez del suelo
El hundimiento del suelo debe ser de 4 mm o menos, si se le aplica una carga de 400 kg/m2.
Si esto no se cumple, utilice placas de suelo parcialmente.
* Utilice placas de suelo si la máquina se instala sobre una esterilla, un suelo de madera o uno de goma.
* Apile placas de suelo para reducir la desigualdad de altura de las juntas en función del grado de hundimiento del mismo.
Planitud del suelo
La planitud en un área rectangular arbitraria de 510 mm x 500 mm debe ser de 4 mm o menos.
Intervalo vertical del suelo
El intervalo vertical entre dos puntos arbitrarios de 1000 mm debe ser de 3 mm o menos.
(No se incluye el grado de hundimiento del suelo).
Inclinación del suelo
La inclinación entre dos puntos arbitrarios en un intervalo de 1600 mm debe ser de 3 mm o menos.

Métodos de medición para cada valor estándar

Los valores estándar se miden de acuerdo con los siguientes procedimientos.
Utilice placas de hierro como placas de suelo, que correspondan a un tamaño de 890 mm x 487,5 mm, un peso de 13 kg y un espesor de 4 mm.
Carga soportada por el suelo
Confirme las especificaciones de la carga soportada por el suelo con el constructor del edificio en el que está prevista la instalación de la máquina.
Rigidez del suelo
Prepare una placa de suelo y colóquela en el lugar donde está previsto instalar la máquina. Mida el hundimiento del suelo cuando dos adultos (aproximadamente 150 kg) pisen la placa. A partir de estas mediciones, calcule el nivel de hundimiento en el suelo cuando se instale la máquina haciendo un cálculo proporcional.
 
Método de cálculo
Cada parámetro se especifica de la siguiente manera:
t: la altura desde el suelo hasta la superficie superior de la placa del suelo
Δt: la altura desde el suelo hasta la superficie superior de la placa del suelo cuando se aplica la carga
Ts (mm/kgf): la constante de la cantidad estimada de hundimiento en el suelo
Ts (ME): la cantidad de hundimiento del suelo donde se instala esta máquina

En primer lugar, se deberá calcular la constante de la cantidad estimada de hundimiento en el suelo.
Ts (mm/kgf) = (t - Δt)/150
A partir de esta constante, calcule la cantidad de hundimiento en el suelo donde está instalada esta máquina.
Ts (ME) = (272 (kgf)/2) x Ts (mm/kgf)
Ejemplo
En el caso de
t = 4 mm Δt = 3 mm
La constante de la cantidad estimada de hundimiento en el suelo se calcula como se muestra a continuación.
(4 - 3)/150 = 0,006
En este ejemplo, la cantidad estimada de hundimiento en el suelo donde está instalada la máquina es de 0,816 mm con la siguiente fórmula.
Ts (ME) = (272 (kgf)/2) x 0,006 = 0,816
Si se conecta el Depósito POD Sencillo C opcional a la unidad principal, la posición de instalación del Depósito POD Sencillo C deberá ser inferior a la de la unidad principal. Al igual que en la descripción anterior, la diferencia entre la cantidad estimada de hundimiento en el suelo donde está instalada la unidad principal y la del suelo donde está instalado el Depósito POD Sencillo C debe ser 4 mm o menos. Además, si la posición de instalación del Depósito POD Sencillo C es más alta que la de la unidad principal, coloque las placas del suelo solo debajo de la unidad principal para reducir la diferencia.
Planitud del suelo
Coloque una placa de suelo en el lugar donde está prevista la instalación de la máquina y ponga el nivel simplificado en el centro de la misma. Para que la placa de suelo quede horizontal, inserte algunos espaciadores (monedas) debajo de A o B de la placa de suelo, como se muestra en la ilustración siguiente. Calcule la planitud del suelo a partir del grosor del espaciador y del número de ellos.
Método de cálculo
Utilice monedas que tengan el mismo grosor que el espaciador.
Cada parámetro se especifica de la siguiente manera:
t (mm): el grosor del espaciador
a: el número de espaciadores insertados debajo de A
b: el número de espaciadores insertados debajo de B
Cuando a > b, la planitud del suelo se calcula mediante la siguiente fórmula.
t x a (mm)
Ejemplo
Se utilizan monedas de 1 mm de grosor como espaciadores.
Si se insertan dos espaciadores debajo de A y no se inserta nada debajo de B para que la placa de suelo quede horizontal, la planitud del suelo del suelo es de 2 mm.
Intervalo vertical del suelo
(Este método se utiliza cuando
hay un escalón en el suelo.)
Prepare dos placas de suelo una al lado de la otra y colóquelas sobre el suelo en el que está prevista la instalación de la máquina. En función del método de medición de la «planitud del suelo», coloque una placa de suelo en posición horizontal. A continuación, coloque otra en posición horizontal de la misma manera. Mida la diferencia de altura entre las dos placas de suelo.
Atención a la medición
Coloque las dos placas de suelo con el lado largo de cada una alineado.
Inclinación del suelo
(Este método se utiliza cuando el suelo se inclina suavemente.)
Prepare dos placas de suelo una al lado de la otra y colóquelas sobre el suelo en el que está prevista la instalación de la máquina. En función del método de medición de la «planitud del suelo», coloque una placa de suelo en posición horizontal. A continuación, inserte los espaciadores (monedas) debajo de otra placa de suelo para colocar la placa horizontalmente con la misma altura que la que ha colocado primero. En este caso, inserte los espaciadores en la posición arbitraria del borde de la placa de suelo. Mida la inclinación del suelo con el grosor de los espaciadores que se encuentran más alejados del punto de referencia (el punto determinado como marca de referencia de la altura).
(Consulte la siguiente ilustración.)
Atención a la medición
Coloque las dos placas de suelo con el lado largo de cada una alineado.
Método de cálculo
Utilice monedas que tengan el mismo grosor como espaciador. Cada parámetro se especifica de la siguiente forma.
t (mm): el grosor del espaciador
a: el número de espaciadores
La planitud del suelo se calcula mediante la siguiente fórmula.
S = t x a (mm)
Ejemplo
Se utilizan monedas de 1 mm de grosor como espaciador. Si se insertan tres espaciadores bajo la posición más alejada del punto de referencia, la inclinación del suelo es de 3 mm (= 1 mm x 3).

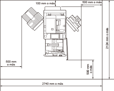
Espacio de instalación

Espacio de instalación necesario
Tamaños, gramajes y ancho de pasillo necesario para girar cada dispositivo

Espacio de instalación necesario

Deje espacio suficiente a cada lado de la máquina para que se pueda operar sin restricciones.
Además, se necesita un espacio de 5 mm entre cada equipo para su conexión.

Configuración estándar (mínima)

Cuando la Bandeja de Salida R esté instalada:

Espacio necesario en la parte trasera

Asegúrese de instalar la máquina a una distancia mínima de 100 mm de la superficie de la pared para que las operaciones en la parte trasera de la misma no se vean obstaculizadas.
Asegure el espacio siguiente, según la configuración de opciones de la máquina.
Cuando la Bandeja de Alineación para la Bandeja de Alimentación D y la Opción de Alimentación para Originales de Longitud especial (Banners) B estén conectadas: 200 mm o más
Cuando se conecte alguna de las opciones de salida/alimentación indicadas en «Configuración completa (máxima)»: 800 mm o más

Espacio necesario en la parte delantera y en la parte izquierda/derecha

Asegúrese de instalar la máquina a una distancia mínima de 500 mm de la superficie de la pared para garantizar el espacio necesario para las operaciones de mantenimiento
Asegure el espacio siguiente, según la configuración de opciones de la máquina.
Cuando se conecte alguna de las opciones de salida/alimentación indicadas en «Configuración completa (máxima)»: 1000 mm o más

Configuración completa (máxima)

Para las siguientes configuraciones de dispositivos
Depósito POD Sencillo C
Unidad de Inserción R
Taladradora MultiFuncional Profesional C
Unidad Plegadora de Papel K
Unidad de Acabado de Cuadernillos AG
Cizalla de Cuadernillos G

Espacio necesario en la parte trasera

Asegúrese de instalar la máquina a una distancia mínima de 800 mm de la superficie de la pared para que las operaciones en la parte trasera de la misma no se vean obstaculizadas.
Asegure el espacio siguiente, según la configuración de opciones de la máquina.
Cuando no se conecte ninguna de las opciones de salida/alimentación indicadas en «Configuración completa (máxima)»: 500 mm o más

Espacio necesario en la parte delantera y en la parte izquierda/derecha

Asegúrese de instalar la máquina a una distancia mínima de 1000 mm de la superficie de la pared para garantizar el espacio necesario para las operaciones de mantenimiento.
Asegure el espacio siguiente, según la configuración de opciones de la máquina.
Cuando no se conecte ninguna de las opciones de salida/alimentación indicadas en «Configuración completa (máxima)»: 500 mm o más

Tamaños, gramajes y ancho de pasillo necesario para girar cada dispositivo

Nombre del producto
Dimensiones (Ancho x Profundo x Alto)
Peso
Ancho de pasillo necesario para la rotación*1
imagePRESS C270 / C265
689 mm x 937 mm x 1.185 mm
Aprox. 255 kg
(sin incluir el cartucho de tóner)
1663 mm
Depósito POD Sencillo C
656 mm x 686 mm x 570 mm
Aprox. 68 kg
1449 mm
Depósito de Papel E
363 mm x 630 mm x 572 mm
Aprox. 34 kg
1227 mm
Unidad de Acabado Grapadora AG
800 mm* x 792 mm x 1239 mm**
*Con la bandeja auxiliar extendida: 890 mm
*Cuando Opción de Alimentación para Originales de Longitud especial (Banners) B esté incluido: 1136 mm
*Cuando Bandeja de Salida para Banners-B esté incluido: 1490 mm
**Cuando Opción de Alimentación para Originales de Longitud especial (Banners) B esté incluido: 1317 mm
**Cuando Bandeja de Salida para Banners-B esté incluido: 1317 mm
Aprox. 130 kg
1626 mm
Unidad de Acabado de Cuadernillos AG
800 mm* x 792 mm x 1239 mm**
*Con la bandeja auxiliar extendida: 1060 mm
*Cuando Opción de Alimentación para Originales de Longitud especial (Banners) B esté incluido: 1136 mm
*Cuando Bandeja de Salida para Banners-B esté incluido: 1490 mm
**Cuando Opción de Alimentación para Originales de Longitud especial (Banners) B esté incluido: 1317 mm
**Cuando Bandeja de Salida para Banners-B esté incluido: 1317 mm
Aprox. 180 kg
1626 mm
Unidad de Inserción R
746 mm x 793 mm x 1.407 mm
Aprox. 61 kg
1589 mm
Unidad Plegadora de Papel K
336 mm x 793 mm x 1190 mm
Aprox. 71 kg
1361 mm
Cizalla de Cuadernillos G
1835 mm x 794 mm x 1044 mm
(Sin incluir la cinta transportadora, incluyendo la bandeja de salida)
2094 mm x 794 mm x 1044 mm
(Incluyendo la cinta transportadora y la bandeja de salida)
Aprox. 152 kg
2499 mm
Taladradora MultiFuncional Profesional C
445 mm x 795 mm x 1040 mm
Aprox. 102 kg
1411 mm
Unidad de Acabado Grapadora AC
527 mm* x 623 mm x 1099 mm
*Cuando la bandeja auxiliar y la bandeja de rotación están extendidas: 656 mm
*Cuando Opción de Alimentación para Originales de Longitud especial (Banners) B esté incluido: 774 mm
Aprox. 36 kg
1316 mm
Unidad de Acabado de Cuadernillos AC
527 mm* x 623 mm x 1099 mm
*Cuando la bandeja auxiliar y la bandeja de rotación están extendidas: 656 mm
*Cuando Opción de Alimentación para Originales de Longitud especial (Banners) B esté incluido: 774 mm
Aprox. 60 kg
1316 mm
Unidad de Inserción/Plegadora K
662 mm x 679 mm x 1.242 mm
Aprox. 76 kg
1448 mm
Bandeja de Salida R
244 mm* x 382 mm x 175 mm**
*Con la bandeja auxiliar extendida: 420 mm
*Cuando Opción de Alimentación para Originales de Longitud especial (Banners) B esté incluido: 711 mm
**Cuando Opción de Alimentación para Originales de Longitud especial (Banners) B esté incluido: 402 mm
Aprox. 1,1 kg
(Excluida la Opción de Alimentación para Originales de Longitud especial (Banners) B)
-
Lector de Tarjetas de Copia
88 mm x 96 mm x 40 mm
(Excluidos el kit de accesorios y el cable)
Aprox. 200 g
(Incluidos el kit de accesorios y el cable)
-
*1 El ancho mínimo necesario para girar es la longitud diagonal de la máquina (equipo) + unos 500 mm.

Entorno de instalación

Condiciones de temperatura y humedad
Gradiente de temperatura
Ventilación
Limitaciones de elevación

Condiciones de temperatura y humedad

No instale la máquina en ubicaciones con mucho o poco calor y humedad, como ubicaciones con un grifo de agua, un calentador de agua, un humidificador, un aire acondicionado, un calentador o una estufa.
Durante el funcionamiento, el rango de humedad admisible es del 15 al 60 % (con una temperatura ambiente de 20 a 27 ˚C).
Existe el riesgo de que la alimentación de papel y la calidad de la imagen se vean afectadas si la máquina se utiliza en una ubicación que no cumpla estas especificaciones.
El intervalo de humedad permitido para almacenamiento de papel se encuentra entre el 15 y 60 % (con una temperatura ambiente de entre 20 °C y 27 °C). Almacenar el papel en una ubicación que no cumpla estas especificaciones puede afectar a la alimentación de papel y a la calidad de la imagen.

Gradiente de temperatura

El uso de aire acondicionado durante el invierno o los cambios bruscos de temperatura pueden tener un efecto adverso en el posicionamiento de la imagen, ya que esto puede hacer que el papel se doble o se contraiga, y provocar un fallo de funcionamiento de la máquina debido a la condensación. Para evitar estos problemas, controle el gradiente de temperatura para que no supere los 10 ˚C/H.

Ventilación

Asegúrese de que hay una tasa de intercambio de aire de al menos 2 veces/h y al menos 30 m3 de espacio en la ubicación en la que se instalará la máquina.
Esta máquina genera una ligera cantidad de ozono, etc., durante su uso normal. Aunque la sensibilidad al ozono, etc. puede variar, la cantidad no es perjudicial. El ozono, etc., puede ser más perceptible durante el uso prolongado o las largas series de producción, especialmente en salas mal ventiladas. Se recomienda que la sala esté correctamente ventilada, lo suficiente como para mantener un entorno de trabajo confortable, en las zonas de funcionamiento de la máquina. Además, no instale esta máquina en un lugar en el que el escape llegue directamente a una persona.

Limitaciones de elevación

Instale esta máquina a una altura de 4000 m o menos.
*Presión atmosférica a 4000 m: 607,8 hPa (valor de referencia)

Suministro eléctrico

Condiciones de suministro eléctrico
Consumo energético máximo

Condiciones de suministro eléctrico

Utilice estos componentes dentro de las especificaciones de suministro eléctrico que se indican a continuación.
El suministro eléctrico de los componentes que no figuran en la tabla se suministra mediante imagePRESS C270 / C265 u otros componentes.
Nombre del producto
Suministro eléctrico
Cable de suministro eléctrico/
Especificaciones del enchufe
La longitud del
cable de alimentación
imagePRESS C270
220-240 V, 50/60 Hz, 11 A
CEE 7/7
2000 mm
imagePRESS C265
220-240 V, 50/60 Hz, 10 A
CEE 7/7
2000 mm
Depósito POD Sencillo C
220-240 V, 50/60 Hz, 1,2 A
CEE 7/7
2000 mm
Depósito de Papel E
Desde la unidad principal
-
-
Unidad de Acabado Grapadora AG
220-240 V, 50/60 Hz, 8 A
CEE 7/7
2000 mm
Unidad de Acabado de Cuadernillos AG
220-240 V, 50/60 Hz, 8 A
CEE 7/7
2000 mm
Unidad de Inserción R
100-240 V, 50/60 Hz, 1 A
CEE 7/7
2000 mm
Unidad Plegadora de Papel K
De la unidad de acabado
-
-
Cizalla de Cuadernillos G
De la unidad de acabado
-
-
Unidad Taladradora BT
De la unidad de acabado
-
-
Unidad Taladradora BU
De la unidad de acabado
-
-
Taladradora MultiFuncional Profesional C
230 V, 50 Hz, 2 A
CEE 7/7
2400 mm
Unidad de Acabado Grapadora AC
Desde la unidad principal
-
-
Unidad de Acabado de Cuadernillos AC
Desde la unidad principal
-
-
Unidad de Inserción/Plegadora K
100-240 V, 50/60 Hz, 1 A
CEE 7/7
2000 mm
Taladradora 2/4 Taladros A
De la unidad de acabado
-
-
Taladradora 4 Taladros A
De la unidad de acabado
-
-

Consumo energético máximo

El consumo energético máximo de imagePRESS C270 / C265 y otros componentes es el siguiente.
Nombre del producto
Consumo energético máximo
imagePRESS C270
2500 W o menos *1
imagePRESS C265
2000 W o menos *1
Depósito POD Sencillo C
480 W o menos
Depósito de Papel E
Incluida la unidad principal
Unidad de Acabado Grapadora AG
500 W o menos
Unidad de Acabado de Cuadernillos AG
500 W o menos
Unidad de Inserción R
120 W o menos
Unidad Plegadora de Papel K
Incluida la unidad de acabado
Cizalla de Cuadernillos G
300 W o menos
Unidad Taladradora BT
Incluida la unidad de acabado
Unidad Taladradora BU
Incluida la unidad de acabado
Taladradora MultiFuncional Profesional C
550 W
Unidad de Acabado Grapadora AC
Incluida la unidad principal
Unidad de Acabado de Cuadernillos AC
Incluida la unidad principal
Unidad de Inserción/Plegadora K
120 W o menos
Taladradora 2/4 Taladros A
Incluida la unidad de acabado
Taladradora 4 Taladros A
Incluida la unidad de acabado
*1 Incluyendo todos los equipos opcionales que se alimentan mediante la unidad principal
CW8E-008