Installationssted

Valg og konfiguration af installationssted
Gulvstruktur
Installationsplads
Installationsmiljø
Strømforsyning

Valg og konfiguration af installationssted

Installationssted
Direkte sollys
Lys
Leveringsforløb

Installationssted

Installer aldrig maskinen følgende steder.
Steder, hvor der er meget støv.
Steder med flygtige eller brændbare materialer, som f.eks. alkohol eller fortyndingsmidler.
Steder, hvor maskinen udsætte maskinen for hurtige temperatursvingninger.
Hvis rummet er koldt og opvarmes hurtigt, kan der dannes kondensvand inde i maskinen. Dette kan medføre, at det kopierede billedes kvalitet bliver mærkbart forringet, at der opstår problemer med scanningen af en original, eller at kopierne er blanke.
Steder i nærheden af computere eller andet elektronisk præcisionsudstyr.
Elektrisk støj og vibrationer fra maskinen under print kan påvirke følsomt udstyr.
Steder i nærheden af tv-apparater, radioer og andet elektronisk udstyr
Maskinen kan virke forstyrrende for modtagelsen af lyd- og billedsignaler. Slut maskinen til et stik, som ikke anvendes til andet udstyr, og sørg for, at der er størst mulig afstand mellem maskinen og andet elektronisk udstyr.
Steder i nærheden af ultratoniske luftfugtere eller sprinklerluftfugtere.
Vær forsigtig med installationslayout og driftsmiljø, når maskinen installeres følgende steder.
Steder i nærheden af udstyr (*), som afgiver flygtige stoffer.
Flygtige stoffer kan komme ind i maskinen og påvirke billedkvaliteten.
Hvis du bruger sådan udstyr, skal du kontakte din lokal autoriserede Canon-forhandler eller Canon Danmark. inden den tages i brug.
*Eksempel: udtyr, som bruger varme smelteklæbemidler (bogbindingsmaskiner eller lamineringsmaskiner), aromaudstyr, diazo-kopimaskiner osv.
Installation af flere maskiner
Hvis du installerer flere maskiner i nærheden, skal du kontakte din lokal autoriserede Canon-forhandler eller Canon Danmark vedrørende installationslayout, inden installationen, så luftindtaget på maskinen ikke kommer for tæt på maskinens udledning eller andre maskiner.
Fjern ikke de justérbare ben.
Fjern ikke de justérbare ben, når maskinen er installeret.
Hvis du placerer tunge genstande foran på maskinen, mens skufferne, papirmagasinerne eller enhederne er fjernet fra maskinen, kan maskinen risikere at falde forover. Du kan forhindre dette ved at sikre dig, at justeringsbenene er på plads.

Direkte sollys

Undgå at installere maskinen i direkte sollys.
Hvis dette ikke kan undgås, skal du beskytte maskinen med gardiner. Sørg for at gardinerne ikke blokerer maskinens ventilationsåbninger eller luftgæller eller forstyrrer strømforsyningen.

Lys

Vi anbefaler, at maskinen installeres på et sted med mindst 500 lux (75 cm over gulvet) tilbage til normal drift og vedligeholdelse.

Leveringsforløb

For informationer om størrelsen og vægten på imagePRESS C270 / C265 og dens indstillinger se Størrelser, vægt og påkrævet gangbredde til drejning af de enkelte enheder. Kontroller, at der er bevægelsesplads nok og den påkrævede guldstyrke til at maskinen kan leveres.

Gulvstruktur

Gulvstruktur
Standardværdier på gulvstruktur
Målemetoder for de enkelte standardværdier

Gulvstruktur

Det gulv, hvorpå maskinen skal installeres, skal have en belastningsevne på mindst 400 kg/m2. Selv om gulvet ikke har denne belastningsevne, kan maskinen installeres i nærheden af en pille eller bjælke. Kontakt bygningens entreprenør, inden maskinen installeres.
Maskinens vægt er primært koncentreret om gulvet via justeringsben og hjul. Vi anbefaler brug af et underlag til at fordele vægten.
Vi anbefaler også brug af underlag, når maskinen installeres på et tæppe eller trægulv. Få flere oplysninger om underlag hos Canon Danmark.
Du må derfor ikke installere maskinen på et ustabilt gulv eller platform.

Standardværdier på gulvstruktur

Sørg for at installere imagePRESS C270 / C265 og valgfrit udstyr på et gulv, som opfylder følgende standard.
Gulvets stivhed
Gulvsænkningen må højes være på 4 mm, hvis en belastning på 400 kg/m2 placeres her.
Hvis dette ikke kan opfyldes, skal der bruges gulvplader, som kan fordele vægten.
* Brug gulvplader, hvis maskinen installeres på underlag, trægulv eller gummigulv.
* Afhængigt af gulvets sænkning skal der stables gulvplader for at reduceres ujævnheder i samlingerne.
Gulvets planhed
Planheden i vilkårlige, rektangulære områder på 510 mm x 500 mm skal være højest 4 mm.
Gulvets vertikale interval
Gulvets vertikale interval mellem to vilkårlige punkter på 1.000 mm må højest være 3 mm.
(Værdien omfatter ikke gulvsænkningen.)
Gulvets hældning
Hældningen mellem to vilkårlige punkter på 1.600 mm interval må højest være 3 mm.

Målemetoder for de enkelte standardværdier

Standardværdierne måles i henhold til følgende procedurer.
Brug jernpladen som gulvplade, som svarer til 890 mm x 487,5 mm, 13 kg og 4 mms tykkelse.
Gulvet maksimale belastning
Kontrollér specifikationerne for den maksimale belastning i det område, hvor maskinen forventes at skulle placeres, hos byggeentreprenøren.
Gulvets stivhed
Gør en gulvplade klar og læg den, der hvor maskinen forventes at skulle placeres. Mål gulvsænkningen, når to voksne (cirka 150 kg) stiller sig på pladen. Ud fra dette mål anslås gulvsænkningen på den del af gulvet, hvor maskinen skal installeres, ved at foretage en proportionel beregning.
 
Beregningsmetode
De enkelte parametre er specificeret således:
t: højden fra gulvet til den øverste overflade på gulvpladen
Δt: højden fra gulvet til den øverste gulvpladen, når belastningen sættes herpå
Ts (mm/kgf): Konstanten for den estimerede gulvsænkning
Ts (ME): gulvsænkningen, når maskinen er installeret

Først skal konstanten for gulvsænkningen beregnes.
Ts (mm/kgf) = (t - Δt)/150
Ved hjælp af denne konstant estimeres gulvsænkningen, der hvor maskinen skal installeres.
Ts (ME) = (272 (kgf)/2) x Ts (mm/kgf)
Eksempel
I dette tilfælde på
t = 4 mm Δt = 3 mm
Konstanten på den estimerede gulvsænkning er beregnet som nedenfor.
(4 - 3)/150 = 0,006
I dette eksempel er den estimerede gulvsænkning, der hvor maskinen skal installeres, 0,816 mm med følgende formel.
Ts (ME) = (272 (kgf)/2) x 0,006 = 0,816
Hvis du monterer tilbehøret POD Deck Lite-C til hovedenheden, skal placeringen for POD Deck Lite-C være lavere end for hovedenheden. Som det fremgår af ovenstående beskrivelse, skal forskellen mellem den estimerede gulvsænkning, der hvor hovedenheden skal monteres, og den på gulvet, hvor POD Deck Lite-C skal installeres, højest 4 mm. Ligeledes skal der, hvis placeringen for POD Deck Lite-C er højere end hovedenhedens, kun placeres gulvplader under hovedenheden for at reducere forskellen.
Gulvets planhed
Læg en gulvplade, der hvor maskinen forventes at skulle placeres, og læg en forenklet reguleringsstand midt under den. For at gøre gulvpladen horisontal skal der lægges afstandstykker (kiler) under gulvpladens A eller B som vist i illustrationen herunder. Beregn gulvets planhed ud fra afstandsstykkernes tykkelse og antallet af dem.
Beregningsmetode
Brug kiler, som har samme tykkelse som et afstandsstykke.
De enkelte parametre er specificeret som følger:
t (mm): tykkelsen på afstandsstykkets
a: det antal afstandsstykker, som er indsat under A
b: det antal afstandsstykker, som er indsat under B
Når en > b for gulvets planhed beregnes, skal følgende formel anvendes.
t x a (mm)
Eksempel
Kilen på 1 mm anvendes som et afstandsstykke.
Hvis der er indsat to afstandsstykker under A, og der ikke er indsat afstandsstykker under B for at gøre gulvpladen horisontal, er gulvets planhed 2 mm.
Intervaller for vertikalt guld
(Denne metode anvendes, når
der er stigning på gulvet.)
Læg to gulvplader ved siden af hinanden på gulvet, der hvor maskinen forventes at skulle placeres. I henhold til målemetoden for "Gulvets planhed" skal der lægges en horisontal gulvplade. Derefter skal der placeres en mere horisontal samme vej. Mål forskellen på højden mellem de to gulvplader.
Særlige ting at være opmærksom på i forbindelse med måling
Læg de to gulvplader, så de to lange sider flugter.
Gulvhældning
(Denne metode anvendes, når gulvet kun hælder en anelse.)
Læg to gulvplader ved siden af hinanden på gulvet, der hvor maskinen forventes at skulle placeres. I henhold til målemetoden for "Gulvets planhed" skal der lægges en horisontal gulvplade. Derefter skal der indsættes afstandsstykker (kiler) under den anden gulvplade for at placere pladen horisontalt med samme højde, som den første der blev placeret. I dette tilfælde skal der indsættes afstandsstykker på vilkårlige steder på gulvpladens kant. Måling af gulvets hældning ud fra tykkelsen på de afstandsstykker, som er placeret længst væk fra referencepunktet (det punkt, der blev anvendt som udgangspunkt for højden).
(Se illustrationen nedenfor.)
Særlige ting at være opmærksom på i forbindelse med måling
Læg de to gulvplader, så de to lange sider flugter.
Beregningsmetode
Brug kiler, som har samme tykkelse som et afstandsstykke. Hver enkelt parameter er specificeret som følger.
(mm) tykkelsen på afstandsstykket
a: antallet af afstandsstykker
Gulvets planhed beregnes ud fra følgende formel.
S = t x a (mm)
Eksempel
Kilen på 1 mm anvendes som et afstandsstykke. Hvis der indsættes tre afstandsstykker under den placering, som er længste væk fra referencepunktet, er hældningen 3 mm (= 1 mm x 3).

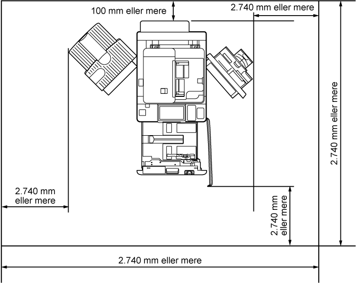
Installationsplads

Påkrævet installationsplads
Størrelser, vægt og påkrævet gangbredde til drejning af de enkelte enheder

Påkrævet installationsplads

Sørg også for, at der er fri adgang til maskinen fra begge sider.
Det samme gælder, når afstanden på 5 mm for det enkelte udstyr er nødvendigt for at tilslutte dem.

Standardkonfiguration (minimum)

Når Copy Tray-R er monteret:

Nødvendig plads ved bagende

Sørg for at maskinen installeres mindst 100 mm fra vægens overflade, så betjening på maskinens bagside ikke forhindres.
Sørg for følgende plads i henhold til konfiguration af tilbehør, der er installeret på maskinen.
Når Stack Bypass Alignment Tray-D og Long Sheet Tray-B er monteret: 200 mm eller mere
Når tilbehøret output/indføring, som indikeres ved "Komplet tilbehør (maksimal) konfiguration" er monteret: 800 mm eller mere

Påkrævet plads foran og til venstre/højre

Sørg for, at maskinen er installeret mindst 500 mm fra væggens overflade, så der er fri plads til servicearbejde.
Sørg for følgende plads i henhold til konfiguration af tilbehør, der er installeret på maskinen.
Når tilbehøret output/indføring, som indikeres ved "Komplet tilbehør (maksimal) konfiguration" er monteret: 1.000 mm eller mere

Komplet tilbehør (maksimal) konfiguration

For følgende enhedskonfigurationer
POD Deck Lite-C
Document Insertion Unit-R
Multi Function Professional Puncher-C
Paper Folding Unit-K
Booklet Finisher-AG
Booklet Trimmer-G

Nødvendig plads ved bagende

Sørg for at maskinen installeres mindst 800 mm fra vægens overflade, så betjening på maskinens bagside ikke forhindres.
Sørg for følgende plads i henhold til konfiguration af tilbehør, der er installeret på maskinen.
Når tilbehøret hverken output/indføring, som indikeres ved "Komplet tilbehør (maksimal) konfiguration" er monteret: 500 mm eller mere

Påkrævet plads foran og til venstre/højre

Sørg for, at maskinen er installeret mindst 1.000 mm fra væggens overflade, så der er fri plads til servicearbejde.
Sørg for følgende plads i henhold til konfiguration af tilbehør, der er installeret på maskinen.
Når tilbehøret hverken output/indføring, som indikeres ved "Komplet tilbehør (maksimal) konfiguration" er monteret: 500 mm eller mere

Størrelser, vægt og påkrævet gangbredde til drejning af de enkelte enheder

Produktnavn
Mål (B x D x H)
Vægt
Påkrævet gangbredde til drejning af*1
imagePRESS C270 / C265
689 mm x 937 mm x 1.185 mm
Cirka 255 kg
(eksklusive tonerpatron)
1.663 mm
POD Deck Lite-C
656 mm x 686 mm x 570 mm
Cirka 68 kg
1.449 mm
Paper Deck Unit-E
363 mm x 630 mm x 572 mm
Cirka 34 kg
1.227 mm
Staple Finisher-AG
800 mm* x 792 mm x 1.239 mm**
*Når den ekstra bakke er trukket ud: 890 mm
*Når Long Sheet Tray-B er inkluderet: 1.136 mm
*Når Finisher Long Sheet Catch Tray-B er inkluderet: 1.490 mm
**Når Long Sheet Tray-B er inkluderet: 1.317 mm
**Når Finisher Long Sheet Catch Tray-B er inkluderet: 1.317 mm
Cirka 130 kg
1.626 mm
Booklet Finisher-AG
800 mm* x 792 mm x 1.239 mm**
*Når den ekstra bakke er trukket ud: 1.060 mm
*Når Long Sheet Tray-B er inkluderet: 1.136 mm
*Når Finisher Long Sheet Catch Tray-B er inkluderet: 1.490 mm
**Når Long Sheet Tray-B er inkluderet: 1.317 mm
**Når Finisher Long Sheet Catch Tray-B er inkluderet: 1.317 mm
Cirka 180 kg
1.626 mm
Document Insertion Unit-R
746 mm x 793 mm x 1.407 mm
Cirka 61 kg
1.589 mm
Paper Folding Unit-K
336 mm x 793 mm x 1.190 mm
Cirka 71 kg
1.361 mm
Booklet Trimmer-G
1.835 mm x 794 mm x 1.044 mm
(uden transporter, med udbakke)
2.094 mm x 794 mm x 1.044 mm
(med transporter og udbakke)
Cirka 152 kg
2.499 mm
Multi Function Professional Puncher-C
445 mm x 795 mm x 1.040 mm
Cirka 102 kg
1.411 mm
Staple Finisher-AC
527 mm* x 623 mm x 1.099 mm
* Når universalbakken og rotationsbakken er trukket ud: 656 mm
*Når Long Sheet Tray-B er inkluderet: 774 mm
Cirka 36 kg
1.316 mm
Booklet Finisher-AC
527 mm* x 623 mm x 1.099 mm
* Når universalbakken og rotationsbakken er trukket ud: 656 mm
*Når Long Sheet Tray-B er inkluderet: 774 mm
Cirka 60 kg
1.316 mm
Document Insertion / Folding Unit-K
662 mm x 679 mm x 1.242 mm
Cirka 76 kg
1.448 mm
Copy Tray-R
244 mm* x 382 mm x 175 mm**
*Når den ekstra bakke er trukket ud: 420 mm
*Når Long Sheet Tray-B er inkluderet: 711 mm
**Når Long Sheet Tray-B er inkluderet: 402 mm
Cirka 1,1 kg
(uden Long Sheet Tray-B)
-
Copy Card Reader
88 mm x 96 mm x 40 mm
(ekskl. monteringskit og kabel)
Ca. 200 g
(inkl. monteringskit og kabel)
-
*1 Påkrævet minimumsbredde for at dreje er maskinens diagonale længde (udstyr) + cirka 500 mm.

Installationsmiljø

Betingelser for temperatur og luftfugtighed
Temperaturændringer
Ventilation
Højdegrænser

Betingelser for temperatur og luftfugtighed

Du må ikke installere maskinen på steder med høj eller lav varme og luftfugtighed, som f.eks. steder med vandhane, vandvarmer, befugtningsanlæg, aircondition, varmegiver eller ovn.
Det tilladte luftfugtighedsområde i forbindelse med drift er 15-60 % (med en rumtemperatur på ca. 20-27 °C).
Der er risiko for, at papirfremføring og billedkvalitet kan blive påvirket, hvis maskinen benyttes på steder, som ikke opfylder disse specifikationer.
Det tilladte luftfugtighedsområde for papiropbevaring er 15-60 % (med en rumtemperatur på ca. 20-27 °C). Papiropbevaring på et sted, der ikke overholder disse specifikationer, kan påvirke papirfremføringen og billedkvaliteten.

Temperaturændringer

Brug af aircondition om vinteren eller pludselige temperaturændringer kan have forringe billedplaceringen, da dette kan forårsage, at papiret bukke eller trække sig sammen og forårsage fejl på maskinen på grund af kondensvand. For at undgå sådanne problemer skal temperaturændringer reguleres, så de ikke overstiger 10 ˚C/H.

Ventilation

Sørg for, at der er en luftudskiftningsniveau på mindst to gange pr. time på mindst 30 m3 på det sted, hvor maskinen skal installeres.
Denne maskine genererer en lille smule ozon osv. under normal brug. Selvom overfølsomhed over for ozon mv. kan variere, er denne mængde ikke skadelig. Ozonen mv. kan være mere mærkbar under længere brug eller et langt printjob, særligt i dårligt ventilerede rum. Det anbefales, at rummet ventileres ordentligt, således at der opretholdes et behageligt arbejdsklima i områderne omkring maskinen. Du må heller ikke installere denne maskine et sted, hvor den udleder direkte på en person.

Højdegrænser

Installer maskinen på en højde på 4.000 m eller mindre.
*Atmosfærisk tyrk på 4.000 m: 607,8 hPa (referenceværdi)

Strømforsyning

Krav til strømforsyningen
Højeste energiforbrug

Krav til strømforsyningen

Brug disse dele i henhold til specifikationerne for strømforsyningen, som fremgår herunder.
De strømforsyningsdele, som ikke fremgår af tabellen, leveres af imagePRESS C270 / C265 eller andre dele.
Produktnavn
Strømforsyning
Strømforsyningsledning/
Specifikationer for stik
Længde på
strømledningen
imagePRESS C270
220-240 V, 50/60 Hz, 11A
CEE 7/7
2.000 mm
imagePRESS C265
220-240 V, 50/60 Hz, 10A
CEE 7/7
2.000 mm
POD Deck Lite-C
220-240 V, 50/60 Hz, 1.2 A
CEE 7/7
2.000 mm
Paper Deck Unit-E
Fra hovedenheden
-
-
Staple Finisher-AG
220-240 V, 50/60 Hz, 8 A
CEE 7/7
2.000 mm
Booklet Finisher-AG
220-240 V, 50/60 Hz, 8 A
CEE 7/7
2.000 mm
Document Insertion Unit-R
100-240 V, 50/60 Hz, 1,0 A
CEE 7/7
2.000 mm
Paper Folding Unit-K
Fra finisheren
-
-
Booklet Trimmer-G
Fra finisheren
-
-
Puncher Unit-BT
Fra finisheren
-
-
Puncher Unit-BU
Fra finisheren
-
-
Multi Function Professional Puncher-C
230 V, 50 Hz, 2,0 A
CEE 7/7
2.400 mm
Staple Finisher-AC
Fra hovedenheden
-
-
Booklet Finisher-AC
Fra hovedenheden
-
-
Document Insertion / Folding Unit-K
100-240 V, 50/60 Hz, 1,0 A
CEE 7/7
2.000 mm
2/4 Hole Puncher Unit-A
Fra finisheren
-
-
4 Hole Puncher Unit-A
Fra finisheren
-
-

Højeste energiforbrug

Det maksimale energiforbrug for imagePRESS C270 / C265 og andre dele fremgår af listen herunder.
Produktnavn
Højeste energiforbrug
imagePRESS C270
2.500 W eller mindre *1
imagePRESS C265
2.000 W eller mindre *1
POD Deck Lite-C
480 W eller mindre
Paper Deck Unit-E
Inkluderet i hovedenheden
Staple Finisher-AG
500 W eller mindre
Booklet Finisher-AG
500 W eller mindre
Document Insertion Unit-R
120 W eller mindre
Paper Folding Unit-K
Inkluderet i finisheren
Booklet Trimmer-G
300 W eller mindre
Puncher Unit-BT
Inkluderet i finisheren
Puncher Unit-BU
Inkluderet i finisheren
Multi Function Professional Puncher-C
550 W
Staple Finisher-AC
Inkluderet i hovedenheden
Booklet Finisher-AC
Inkluderet i hovedenheden
Document Insertion / Folding Unit-K
120 W eller mindre
2/4 Hole Puncher Unit-A
Inkluderet i finisheren
4 Hole Puncher Unit-A
Inkluderet i finisheren
*1 Inklusive alt valgfrit udstyr, som får strøm fra hovedenheden
E2LJ-008