Lokalizacja instalacji

Wybieranie i konfiguracja lokalizacji instalacji
Konstrukcja podłogi
Przestrzeń do instalacji
Środowisko instalacji
Źródło zasilania

Wybieranie i konfiguracja lokalizacji instalacji

Lokalizacja instalacji
Bezpośrednie światło słoneczne
Oświetlenie
Ścieżka dostawy

Lokalizacja instalacji

Nie należy instalować urządzenia w następujących miejscach.
Miejsca, gdzie gromadzą się duże ilości kurzu.
Miejsca w pobliżu łatwopalnych cieczy, takich jak alkohol lub rozpuszczalniki do farb.
Miejsca, w których urządzenie narażone jest na gwałtowne zmiany temperatury.
Jeśli w pokoju, w którym zainstalowano urządzenie, jest niska temperatura i zostanie on gwałtownie ogrzany, wówczas może nastąpić skraplanie pary wodnej wewnątrz urządzenia. Skraplająca się para wodna niekorzystnie wpływa na jakość obrazów na kopiach, może także uniemożliwić zeskanowanie oryginału lub spowoduje, że nie będzie możliwe uzyskanie obrazów na kopiach.
Miejsca w pobliżu komputerów lub innych, precyzyjnych urządzeń elektronicznych.
Oddziaływanie elektryczne oraz drgania wytwarzane podczas pracy urządzenia mogą niekorzystnie wpływać na działanie wyżej wymienionych urządzeń.
Miejsca w pobliżu telewizorów, odbiorników radiowych oraz innych, podobnych urządzeń elektronicznych
Urządzenie może zakłócać odbiór dźwięku i obrazu. Należy je podłączyć do osobnego gniazda sieciowego i zachować jak największą odległość między nim a innymi urządzeniami elektronicznymi.
Miejsca w pobliżu nawilżaczy ultradźwiękowych lub tryskaczowych.
Zachowaj ostrożność podczas instalowania urządzenia w następujących miejscach i uwzględnij układ instalacji oraz środowisko pracy.
Miejsca w pobliżu wyposażenia (*), które wydziela substancje lotne.
Substancje lotne mogą dostać się do urządzenia i wpłynąć na jakość obrazu.
Jeżeli korzystasz z takiego sprzętu, przed użyciem skonsultuj się z lokalnym autoryzowanym dealerem firmy Canon lub przedstawicielem serwisu.
*Przykład: sprzęt wykorzystujący topliwe kleje (maszyny introligatorskie lub urządzenia do laminowania), aparatury zapachowe, kopiarki diazo itp.
Instalacja wielu urządzeń
W przypadku instalacji w pobliżu wielu urządzeń, skonsultuj się z lokalnym autoryzowanym dealerem firmy Canon lub przedstawicielem serwisu w kwestii układu instalacji, tak aby sekcja wlotu powietrza urządzenia nie była zbyt blisko sekcji wylotu powietrza innych urządzeń.
Zabrania się usuwania nóg poziomujących.
Nie usuwaj nóg poziomujących po zainstalowaniu urządzenia.
Zbyt duży nacisk na przód, gdy wysunięte są szuflady, zasobniki lub zespoły, może spowodować przewrócenie się urządzenia. Aby tego uniknąć należy sprawdzić, czy stopki poziomujące znajdują się na swoim miejscu.

Bezpośrednie światło słoneczne

Nie instaluj urządzenia w miejscu padania bezpośredniego światła słonecznego.
Jeżeli nie można tego uniknąć, użyj zasłon, aby urządzenie znajdowało się w cieniu. Należy uważać, aby zasłony lub żaluzje nie zakrywały otworów lub szczelin wentylacyjnych a także, by nie zaczepiały o przewód zasilający lub źródło zasilania prądem elektrycznym.

Oświetlenie

Zalecamy instalację urządzenia w miejscu z przynajmniej 500 luksami (75 cm nad podłogą) dla normalnego działania i konserwacji.

Ścieżka dostawy

Aby uzyskać więcej informacji na temat rozmiarów i wag imagePRESS C270 / C265 i jego opcji, patrz Wymiary, Waga i wymagana szerokość korytarza do włączenia każdego urządzenia. Upewnij się co do potrzebnego miejsca i potrzebnej wytrzymałości podłogi, aby dostarczyć urządzenie.

Konstrukcja podłogi

Konstrukcja podłogi
Standardowe wartości dla konstrukcji podłogi
Metody mierzenia dla każdej wartości standardu

Konstrukcja podłogi

Podłoga, na której urządzenie zostanie zainstalowane musi spełniać wymóg ciężaru 400 kg/m2. Nawet jeśli podłogi nie cechuje taki poziom wytrzymałości, urządzenie może zostać zainstalowane w pobliżu filara lub belki. Przed instalacją urządzenia skonsultuj się z wykonawcą budynku.
Waga urządzenia będzie w głównej mierze skupiona na podłodze poprzez nastawnik i kółka. Zalecamy użycie maty, aby rozłożyć ciężar.
Zalecamy również użycie maty w przypadku instalacji urządzenia na dywanie lub drewnianej podłodze. Informacje na temat mat znajdziesz u swojego sprzedawcy.
Zabrania się instalacji urządzenia na niestabilnej podłodze lub macie.

Standardowe wartości dla konstrukcji podłogi

Pamiętaj, aby zainstalować imagePRESS C270 / C265 wraz z wyposażeniem opcjonalnym na podłodze, która spełnia następujący standard.
Sztywność podłogi
Poziom zapadania się podłogi musi wynosić 4 mm lub mniej, jeśli postawiony zostanie na niej ciężar 400 kg/m2.
Jeśli warunek ten nie zostanie spełniony, użyj płyt podłogowych.
* Użyj płyt podłogowych, jeśli urządzenie jest zainstalowane na macie, drewnianej lub gumowej podłodze.
* W zależności od poziomu zapadania się podłogi, ułóż płyty podłogowe, aby zniwelować nierówność wysokości na złączeniach.
Płaskość podłogi
Płaskość dowolnej prostokątnej powierzchni o wymiarach 510 mm x 500 mm musi być równa 4 mm lub mniej.
Pionowy odstęp na podłodze
Pionowy odstęp między dwoma dowolnymi punktami przerwy 1000 mm musi wynosić 3 mm lub mniej.
(Poziom zapadania podłogi nie jest uwzględniany).
Nachylenie podłogi
Nachylenie między dwoma dowolnymi punktami przerwy 1600 mm musi wynosić 3 mm lub mniej.

Metody mierzenia dla każdej wartości standardu

Wartości standardowe są mierzone według następujących procedur.
Użyj żelaznych płyt jako płyty podłogowe, które odpowiadają wymiarom 890 mm x 487,5 mm, wadze 13 kg i grubości 4 mm.
Dozwolone obciążenie podłogi
Upewnij się co do specyfikacji dozwolonego obciążenia podłogi z wykonawcą budynku, w którym urządzenie ma zostać zainstalowane.
Sztywność podłogi
Przygotuj jedną płytę podłogową do umieszczenia jej w miejscu, gdzie urządzenie ma zostać zainstalowane. Zmierz poziom zapadania się podłogi gdy na płycie staną dwie osoby dorosłe (około 150 kg). Na podstawie tych pomiarów oszacuj stopień zapadania się podłogi, gdy urządzenie zostanie zainstalowane w tym miejscu dokonując proporcjonalnych obliczeń.
 
Metoda obliczeń
Każdy parametr określany jest w następujący sposób:
t: wysokość od podłogi do górnej powierzchni płyty podłogowej
Δt: wysokość od podłogi do górnej powierzchni płyty podłogowej pod obciążeniem
Ts (mm/kgf): stała z oszacowanego stopnia zapadania się podłogi
Ts (ME): stopień zapadania się podłogi w miejscu, w którym zainstalowano urządzenie

Po pierwsze, oblicz stałą szacowanego poziomu zapadania się podłogi
Ts (mm/kgf) = (t - Δt)/150
Posługując się stałą, oszacuj stopień zapadania się podłogi w miejscu, w którym urządzenie zostanie zainstalowane.
Ts (ME) = (272 (kgf)/2) x Ts (mm/kgf)
Przykład
W przypadku, gdy
t = 4 mm Δt = 3 mm
Stała oszacowanego stopnia zapadania się podłogi obliczania jest następująco.
(4 - 3)/150 = 0,006
W tym przykładzie, szacowany poziom zapadania się podłogi w miejscu instalacji urządzenia wynosi 0,816 mm na podstawie następującego wzoru.
Ts (ME) = (272 (kgf)/2) x 0,006 = 0,816
Jeśli dołączyć opcjonalny POD Deck Lite-C do modułu głównego, pozycja instalacji POD Deck Lite-C musi być niższa, niż ta modułu głównego. Zgodnie z powyższym opisem, różnica między szacowanym stopniem zapadania się podłogi, gdzie moduł główny jest zainstalowany i podłogi w miejscu zainstalowania POD Deck Lite-C musi wynosić 4 mm lub mniej. Co więcej, jeżeli pozycja instalacji POD Deck Lite-C jest wyższa niż ta modułu głównego, połóż płyty podłogowe tylko pod modułem głównym, aby zniwelować tę różnicę.
Płaskość podłogi
Rozłóż płytę podłogową na podłodze w miejscu planowanej instalacji urządzenia i połóż uproszczoną poziomicę na jej środku. Aby płyta podłogowa leżała poziomo, włóż trochę rozpórek (monet) pod A lub B płyty podłogowej, jak pokazano na poniższej ilustracji. Oblicz płaskość podłogi na podstawie grubości rozpórki i ich liczby.
Metoda obliczeń
Użyj monet, które mają taką samą grubość co rozpórka.
Każdy parametr określany jest następująco:
t (mm): grubość rozpórki
a: liczba rozpórek włożonych pod A
b: liczba rozpórek włożonych pod B
Gdy a > b, płaskość podłogi wyliczana jest z następującego wzoru.
t x a (mm)
Przykład
Jako rozpórka używane są monety o grubości 1 mm.
Jeżeli pod A włożone zostaną dwie rozpórki, a pod B nie zostanie włożone nic aby płyta podłogowa leżała poziomo, płaskość podłogi wyniesie 2 mm.
Pionowa przerwa w podłodze
(Ta metoda używana jest, gdy
w podłodze jest stopień.)
Rozłóż dwie płyty podłogowe obok siebie w miejscu, gdzie urządzenie ma zostać zainstalowane. Zgodnie z metodą pomiaru „Płaskość podłogi”, ułóż jedną płytę poziomo. Następnie ułóż drugą płytę poziomo w ten sam sposób. Zmierz różnicę w wysokości między dwiema płytami.
Uwaga podczas pomiarów
Połóż dwie płyty podłogowe jedna przy drugiej wzdłuż dłuższego boku.
Nachylenie podłogi
(Ta metoda używana jest, gdy podłoga jest delikatnie pochylona.)
Rozłóż dwie płyty podłogowe obok siebie w miejscu, gdzie urządzenie ma zostać zainstalowane. Zgodnie z metodą pomiaru „Płaskość podłogi”, ułóż jedną płytę poziomo. Następnie włóż rozpórki (monety) pod drugą płytę podłogową, aby ustawić płytę poziomo na tej samej wysokości, co pierwsza płyta. W takim przypadku, włóż rozpórki w odpowiedniej pozycji na krawędzi płyty podłogowej. Zmierz nachylenie podłogi uwzględniając grubość rozpórek, które zostały rozmieszczone jak najdalej od punktu referencyjnego (punktu określonego jako punkt odniesienia dla wysokości).
(Patrz ilustracja poniżej).
Uwaga podczas pomiarów
Połóż dwie płyty podłogowe jedna przy drugiej wzdłuż dłuższego boku.
Metoda obliczeń
Użyj monet, które mają taką samą grubość co rozpórka. Każdy parametr określany jest w następujący sposób.
t (mm): grubość rozpórki
a: liczba rozpórek
Płaskość podłogi obliczana jest według następującego wzoru.
S = t x a (mm)
Przykład
Jako rozpórka używane są monety o grubości 1 mm. Jeśli w miejscu najbardziej oddalonym od punktu referencyjnego podłożone zostaną trzy rozpórki, nachylenie podłogi wyniesie 3 mm (= 1 mm x 3).

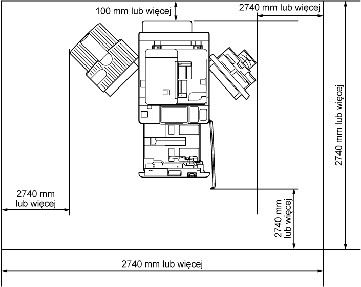
Przestrzeń do instalacji

Potrzebna przestrzeń do instalacji
Wymiary, Waga i wymagana szerokość korytarza do włączenia każdego urządzenia

Potrzebna przestrzeń do instalacji

Należy pozostawić odpowiednią przestrzeń instalacyjną z każdej strony urządzenia, aby zapewnić wygodę obsługi.
Co więcej, potrzebna jest przestrzeń 5 mm między każdym urządzeniem, aby możliwe było ich połączenie.

Konfiguracja standardowa (minimalna)

Gdy Copy Tray-R jest podłączony:

Wymagana przestrzeń z tyłu

Pamiętaj, aby urządzenie zainstalować przynajmniej 100 mm od powierzchni ściany, tak aby działanie urządzenia z tyłu nie było utrudnione.
Zapewnij odpowiednią przestrzeń, zgodnie z opcją konfiguracji urządzenia.
Gdy podłączone są Stack Bypass Alignment Tray-D i Long Sheet Tray-B: 200 mm lub więcej
Gdy dołączona jest którakolwiek z opcji wydruk/podawanie wymieniona w „Konfiguracja wszystkich opcji (maksymalna)”: 800 mm lub więcej

Z przodu i po lewej/prawej stronie wymagane jest miejsce

Pamiętaj, aby urządzenie zainstalować przynajmniej 500 mm od powierzchni ściany, aby zapewnić przestrzeń dla działania usług
Zapewnij odpowiednią przestrzeń, zgodnie z opcją konfiguracji urządzenia.
Gdy dołączona jest którakolwiek z opcji wydruk/podawanie wymieniona w „Konfiguracja wszystkich opcji (maksymalna)”: 1000 mm lub więcej

Konfiguracja wszystkich opcji (maksymalna)

Dla poniższych konfiguracji urządzenia
POD Deck Lite-C
Document Insertion Unit-R
Multi Function Professional Puncher-C
Paper Folding Unit-K
Booklet Finisher-AG
Booklet Trimmer-G

Wymagana przestrzeń z tyłu

Pamiętaj, aby urządzenie zainstalować przynajmniej 800 mm od powierzchni ściany, tak aby działanie urządzenia z tyłu nie było utrudnione.
Zapewnij odpowiednią przestrzeń, zgodnie z opcją konfiguracji urządzenia.
Jeżeli nie jest dołączana żadna z opcji wydruk/podawanie wymieniona w „Konfiguracja wszystkich opcji (maksymalna)”: 500 mm lub więcej

Z przodu i po lewej/prawej stronie wymagane jest miejsce

Pamiętaj, aby urządzenie zainstalować przynajmniej 1000 mm od powierzchni ściany, aby zapewnić przestrzeń dla działania usług
Zapewnij odpowiednią przestrzeń, zgodnie z opcją konfiguracji urządzenia.
Jeżeli nie jest dołączana żadna z opcji wydruk/podawanie wymieniona w „Konfiguracja wszystkich opcji (maksymalna)”: 500 mm lub więcej

Wymiary, Waga i wymagana szerokość korytarza do włączenia każdego urządzenia

Nazwa produktu
Wymiary (SZER. x GŁ. x WYS.)
Waga
Szerokość korytarza wymagana do obrotu*1
imagePRESS C270 / C265
689 mm x 937 mm x 1 185 mm
Około 255 kg
(bez zasobnika tonera)
1663 mm
POD Deck Lite-C
656 mm x 686 mm x 570 mm
Około 68 kg
1449 mm
Paper Deck Unit-E
363 mm x 630 mm x 572 mm
Około 34 kg
1227 mm
Staple Finisher-AG
800 mm* x 792 mm x 1239 mm**
*Po wysunięciu przedłużenia dodatkowej tacy: 890 mm
*Gdy dołączona jest Long Sheet Tray-B: 1 136 mm
*Gdy dołączona jest Finisher Long Sheet Catch Tray-B: 1 490 mm
**Gdy dołączona jest Long Sheet Tray-B: 1 317 mm
**Gdy dołączona jest Finisher Long Sheet Catch Tray-B: 1 317 mm
Około 130 kg
1626 mm
Booklet Finisher-AG
800 mm* x 792 mm x 1239 mm**
*Po wysunięciu przedłużenia dodatkowej tacy: 1 060 mm
*Gdy dołączona jest Long Sheet Tray-B: 1 136 mm
*Gdy dołączona jest Finisher Long Sheet Catch Tray-B: 1 490 mm
**Gdy dołączona jest Long Sheet Tray-B: 1 317 mm
**Gdy dołączona jest Finisher Long Sheet Catch Tray-B: 1 317 mm
Około 180 kg
1626 mm
Document Insertion Unit-R
746 mm x 793 mm x 1407 mm
Około 61 kg
1589 mm
Paper Folding Unit-K
336 mm x 793 mm x 1190 mm
Około 71 kg
1 361 mm
Booklet Trimmer-G
1,835 mm x 794 mm x 1044 mm
(Bez przenośników, z uwzględnieniem tacy wyprowadzającej)
2,094 mm x 794 mm x 1044 mm
(Z uwzględnieniem przenośników i tacy wyprowadzającej)
Około 152 kg
2499 mm
Multi Function Professional Puncher-C
445 mm x 795 mm x 1040 mm
Około 102 kg
1411 mm
Staple Finisher-AC
527 mm* x 623 mm x 1099 mm
*Gdy taca pomocnicza i taca obrotowa są rozłożone: 656 mm
*Gdy dołączona jest Long Sheet Tray-B: 774 mm
Około 36 kg
1316 mm
Booklet Finisher-AC
527 mm* x 623 mm x 1099 mm
*Gdy taca pomocnicza i taca obrotowa są rozłożone: 656 mm
*Gdy dołączona jest Long Sheet Tray-B: 774 mm
Około 60 kg
1316 mm
Document Insertion / Folding Unit-K
662 mm x 679 mm x 1242 mm
Około 76 kg
1448 mm
Copy Tray-R
244 mm* x 382 mm x 175 mm**
*Po wysunięciu przedłużenia dodatkowej tacy: 420 mm
*Gdy dołączona jest Long Sheet Tray-B: 711 mm
**Gdy dołączona jest Long Sheet Tray-B: 402 mm
Około 1,1 kg
(Z wyłączeniem Long Sheet Tray-B)
-
Copy Card Reader
88 mm x 96 mm x 40 mm
(wyłączając przewód i moduły dodatkowe)
Około 200 g
(wliczając przewód i moduły dodatkowe)
-
*1 Minimalna szerokość wymagana do obrotu równa jest długości przekątnej urządzenia (sprzętu) + około 500 mm.

Środowisko instalacji

Warunki dotyczące temperatury i wilgotności
Gradient temperatury
Wentylacja
Ograniczenia dot. wysokości

Warunki dotyczące temperatury i wilgotności

Nie instaluj urządzenia w miejscach, w których panuje wysoki lub niski poziom ciepła oraz wilgotność, jak np. w pomieszczeniach z kranem, podgrzewaczem wody, klimatyzatorem, grzejnikiem lub kuchenką.
W trakcie pracy, dozwolona wartość poziomu wilgotności mieści się w zakresie od 15% do 60% (przy temperaturze pomieszczenia wynoszącej od 20 do 27°C).
Istnieje ryzyko, że jeśli urządzenie jest używane w miejscach, które nie spełniają tych warunków, może to mieć wpływ na podawanie papieru i jakość obrazu.
Papier można przechowywać w miejscu, w którym wartość poziomu wilgotności mieści się w zakresie od 15% do 60% (przy temperaturze pomieszczenia wynoszącej od 20 do 27 °C). Przechowywanie papieru w miejscu niespełniającym tych wymogów może wpłynąć na podawanie papieru i jakość obrazów.

Gradient temperatury

Używanie klimatyzatora w trakcie zimy lub nagłe zmiany temperatury mogą wywołać niekorzystny efekt na pozycjonowanie obrazu, ponieważ może to spowodować zginanie lub skurczenie się papieru, a także, ze względu na kondensację, doprowadzić do nieprawidłowego funkcjonowania urządzenia. Aby uniknąć tego typu problemów, kontroluj gradient temperatury, tak aby nie przekraczał on 10˚C/godz.

Wentylacja

Zadbaj, aby do wymiany powietrza dochodziło przynajmniej 2 razy/godz. oraz aby w miejscu instalacji urządzenia dostępnej było 30 m3 powierzchni.
To urządzenie wytwarza niewielką ilość ozonu i innych gazów podczas normalnej pracy. Niewielka ilość wytwarzanego ozonu i innych substancji nie wpływa ujemnie na ludzkie zdrowie. Podczas długotrwałej pracy urządzenia zwłaszcza w źle wentylowanym pomieszczeniu ilość ozonu i innych substancji może wzrosnąć. Zaleca się odpowiednie wentylowanie pomieszczenia w celu poprawy warunków pracy. Dodatkowo, nie należy instalować urządzenia, jeżeli strona wylotowa jest skierowana bezpośrednio na użytkownika.

Ograniczenia dot. wysokości

Urządzenie zainstaluj na wysokości 4000 m lub niższej.
*Ciśnienie atmosferyczne na 4000 m: 607,8 hPa (wartość referencyjna)

Źródło zasilania

Warunki źródła zasilania
Maksymalne zużycie energii

Warunki źródła zasilania

Użyj tych komponentów przy opisanej poniżej specyfikacji dotyczącej zasilania.
Zasilanie dla komponentów nieuwzględnionych w tabeli dostarczane jest przez imagePRESS C270 / C265 lub inne komponenty.
Nazwa produktu
Źródło zasilania
Przewód zasilania/
Specyfikacje wtyczki
Długość
przewodu zasilania
imagePRESS C270
220-240 V, 50/60 Hz, 11A
CEE 7/7
2000 mm
imagePRESS C265
220-240 V, 50/60 Hz, 10A
CEE 7/7
2000 mm
POD Deck Lite-C
220-240 V, 50/60 Hz, 1.2 A
CEE 7/7
2000 mm
Paper Deck Unit-E
Z jednostki głównej
-
-
Staple Finisher-AG
220-240 V, 50/60 Hz, 8 A
CEE 7/7
2000 mm
Booklet Finisher-AG
220-240 V, 50/60 Hz, 8 A
CEE 7/7
2000 mm
Document Insertion Unit-R
100-240 V, 50/60 Hz, 1,0 A
CEE 7/7
2000 mm
Paper Folding Unit-K
Z modułu wykańczania
-
-
Booklet Trimmer-G
Z modułu wykańczania
-
-
Puncher Unit-BT
Z modułu wykańczania
-
-
Puncher Unit-BU
Z modułu wykańczania
-
-
Multi Function Professional Puncher-C
230 V, 50 Hz, 2.0 A
CEE 7/7
2 400 mm
Staple Finisher-AC
Z jednostki głównej
-
-
Booklet Finisher-AC
Z jednostki głównej
-
-
Document Insertion / Folding Unit-K
100-240 V, 50/60 Hz, 1,0 A
CEE 7/7
2 000 mm
2/4 Hole Puncher Unit-A
Z modułu wykańczania
-
-
4 Hole Puncher Unit-A
Z modułu wykańczania
-
-

Maksymalne zużycie energii

Maksymalne zużycie energii imagePRESS C270 / C265 i innych komponentów zostało przedstawione poniżej.
Nazwa produktu
Maksymalne zużycie energii
imagePRESS C270
2500 W lub mniej *1
imagePRESS C265
2000 W lub mniej *1
POD Deck Lite-C
480 W lub mniej
Paper Deck Unit-E
Wliczone do zespołu głównego
Staple Finisher-AG
500 W lub mniej
Booklet Finisher-AG
500 W lub mniej
Document Insertion Unit-R
120 W lub mniej
Paper Folding Unit-K
Wliczone do urządzenia wykańczającego
Booklet Trimmer-G
300 W lub mniej
Puncher Unit-BT
Wliczone do urządzenia wykańczającego
Puncher Unit-BU
Wliczone do urządzenia wykańczającego
Multi Function Professional Puncher-C
550 W
Staple Finisher-AC
Wliczone do zespołu głównego
Booklet Finisher-AC
Wliczone do zespołu głównego
Document Insertion / Folding Unit-K
120 W lub mniej
2/4 Hole Puncher Unit-A
Wliczone do urządzenia wykańczającego
4 Hole Puncher Unit-A
Wliczone do urządzenia wykańczającego
*1 Wliczając całe wyposażenie opcjonalne, które zasilane jest z zespołu głównego
E2S7-008