重要 |
次のような封筒の使用は避けてください。紙づまりやプリントの汚れ、本製品内部の汚れの原因になります。 カールした封筒やしわ、折り目ある封筒 厚すぎる封筒や、薄すぎる封筒 湿っている封筒や、濡れている封筒 破れている封筒 不規則な形の封筒 留め金や窓がついている封筒 接着剤などで封がくっついてしまっている封筒 穴やミシン目などがある封筒 表面に特殊コーティングを施してある封筒 表面加工したカラー用紙の封筒 定着器の加熱温度(約200°C)以下で溶解、燃焼、蒸発したり有毒なガスを発するインクやのりなどを使用した封筒(封の部分に使用しているのりの材質により、定着器の熱でのりが溶けて封印されることがあります。) 封筒にプリントした場合は、10枚排紙されるごとにトレイから封筒を取り除いてください。 封筒を保管するときは高温・多湿な場所は避けて保管してください。 封筒を保管する場所と使用する場所に著しく温度差がある場合は、使用する場所に一日ほど封筒をおいて、室温に慣らしてから使用してください。 |
メモ |
手差し給紙ユニット・Cに封筒をセットする手順は、「手差し給紙ユニット・Cに封筒/郵便はがきをセットする」を参照してください。 PODデッキライト・Cへの封筒セットについて詳しくは「PODデッキライト・Cに封筒をセットする」を参照してください。 PODデッキライトXL・Aへの封筒セットについて詳しくは「PODデッキライトXL・Aに封筒をセットする」を参照してください。 カセットまたはPODデッキライト・Cに封筒をセットした場合は、必ず用紙の登録を行ってください。(→給紙箇所にセットした用紙のサイズと種類を登録する) |
重要 |
カール、しわ、折り目のある封筒の使用は、紙づまりの原因となります。以下の手順を行ってから封筒をセットしてください。 |

メモ |
このとき定規や鉛筆などの固いものを使用して伸ばすことをおすすめします。 |

重要 |
封の部分にのりが付いた封筒を使用すると、定着器の熱や圧力により、のりが溶けることがあります。 特に通紙方向を念入りに行ってください。 封筒のウラ面(封の部分)にはプリントしないでください。 封筒の中に空気が入ってふくらんでいるときは、手でならして空気抜きをしてからセットしてください。 |
重要 |
封筒搬送キット・Fを設置しているときに、本体側カセットの前側ガイドを無理に動かすと、封筒搬送キット・Fが外れることがあります。 カセットにセットした封筒の両面にプリントをしないでください。紙づまりやプリントの汚れ、本製品内部の汚れの原因になります。 |
メモ |
封筒搬送キット・Fを装着した場合にセットできる封筒については、「使用できる用紙について」を参照してください。 角形2号またはISO-C5は、封筒搬送キット・Fなしで使用できます。角形2号またはISO-C5をセットする際は、「カセットに用紙を補給する」、「カセットの用紙サイズを変更する」を参照してください。 洋長形3号は、封筒のメーカーによっては封筒搬送キット・Fなしで使用できる場合があります。 使える封筒のサイズは、長形3号がデフォルトで設定されています。 |





重要 |
封筒がカールしているときは、カールを直してからセットしてください。 |
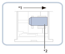
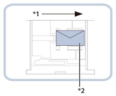
メモ | ||||||
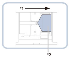
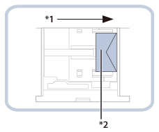
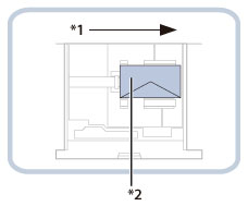
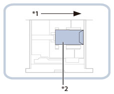
通常の向きでセットしてしわになる場合は、下図のように回転してセットしてください。 180度回転
90度回転
*1 給紙方向 *2 プリントする面を下 プリントするときは、プリンタードライバーの印刷設定画面でも、用紙の向きを回転させてください。詳細については、ヘルプを参照してください。(→「プリンタードライバーのヘルプについて」) コピーするときは、原稿をセットする向きを回転させてください。 ISO-C5 を90度回転させた場合は、ユーザー設定サイズで229 × 162 mm に設定して出力してください。 |
重要 |
封筒がカールしているときは、カールを直してからセットしてください。 セットする封筒の高さが積載制限表示( )を越えないように注意してください。セット可能な封筒の高さは約33.5 mmです。 セット可能な封筒の枚数は封筒の規格や使用環境によって異なりますが、約50枚を目安としてください。 封筒の傾きに注意して積載してください。カセットの手前側が高くなっている場合は、下図のように水平またはカセットの奥側が高くなるように積載しなおしてください。 ![]() *1 カセットの手前側 *2 カセットの奥側 |
注意 |
カセットを本体に戻すときは、すき間に指をはさまないように注意してください。 |
重要 |
封筒がカールしていると、画像のかすれの原因となります。その場合は、封筒のカールを直してセットしなおしてください。 封筒の高さが積載制限表示( )を越えていたり、カセットが本体奥まで押し込まれていなかったりすると、コピーやプリントができません。積載制限表示( )を越える枚数の封筒をセットしないでください。カセットが本体奥まで押し込まれているかどうかを確認してください。 カセットの封筒をセットする部分以外のスペースに、用紙や用紙以外のものを入れないでください。紙づまりの原因になることがあります。 封筒を使用しない場合は、必ず封筒搬送キット・Fを元の場所に戻してください。封筒搬送キット・Fをつけたままで封筒以外の用紙をセットすると紙づまりの原因になる場合があります。 |