须知 |
请勿将下列类型的信封添加到信封纸盒中。否则可能导致卡纸、弄脏打印件或弄脏本机内部。 卷曲、起皱或折叠的信封 过厚或过薄的信封 潮湿或浸湿的信封 残破的信封 不规则形状的信封 带扣钩或窗口的信封 已经密封的信封 带孔或孔线的信封 表面有特殊涂层的信封 表面经过处理的彩色纸制成的信封 自粘信封,其使用的墨水、胶水或其他物质在定影组件的高温下(大约200℃)会熔化、燃烧、蒸发或释放气味。根据密封所使用的材料,胶水可能会在定影组件的高温下熔化,从而粘住信封。 如果正在打印信封,请在托盘中堆积的信封超过10个时清空输出托盘。 信封应存放在远离高温和潮湿的地方。 如果存放信封的位置和打印信封的位置存在温差,请在使用信封前将其放在打印位置的室温环境中。 |
注释 |
有关如何将信封添加到“旁路堆栈供纸器-C”的信息,请参阅“将信封添加到旁路堆栈供纸器-C中”。 有关如何将信封添加到“侧纸仓-C”的详细信息,请参阅“将信封添加到侧纸仓-C”。 有关如何将信封添加到“多纸盒纸柜-C”的信息,请参阅“将信封添加到多纸盒纸柜-C”。 有关如何将信封添加到“POD Deck Lite XL-A”的信息,请参阅“将信封添加到“长纸大容量侧纸仓 – A”中”。 在纸盒、“侧纸仓-C”或“多纸盒纸柜-C”中添加信封时,请确保注册纸张。(请参阅“注册供纸器的纸张尺寸和类型”) |
须知 |
使用卷曲、起皱或折叠的信封可能导致卡纸。请按照下面的步骤操作完毕后添加信封。 |

注释 |
建议使用较硬的物品(如尺子或铅笔)去除卷曲。 |

须知 |
如果使用盖口处有胶水的信封,则胶水可能由于定影组件的高温和压力而熔化。 尤其注意要沿信封的输送方向去除卷曲。 请勿在信封的背面(带有信封盖口的一面)打印。 如果信封中有空气,用手压平信封后再将其添加到“信封输送器附件-F”。 |
须知 |
将“信封输送器附件-F”安装到纸盒时,请勿向错误方向强行移动纸盒前导板。否则可能会使“信封输送器附件-F”和纸盒分离。 请勿同时打印信封的正反面。否则可能导致卡纸、弄脏打印件或弄脏本机内部。 |
注释 |
有关可以添加到安装了“信封输送器附件-F”的纸盒的信封信息,请参阅“可用的纸张材料”。 可以不使用“信封输送器附件-F”将Kakugata 2和ISO-5信封添加到纸盒中。有关如何添加Kakugata 2和ISO-5信封的信息,请参阅“将纸张添加到纸盒中”和“调整纸盒以容纳不同尺寸的纸张”。 本机和导板尺寸设置的默认设置为“No. 10(COM10)”。 |




须知 |
使用前必须展平卷起或卷曲的信封。 |
注释 | ||||||
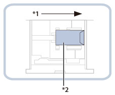
即使按上图所示添加信封后,如果信封仍然会起皱,请按下图所示将信封旋转后再添加。 180度旋转
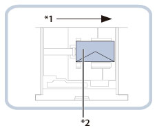
90度旋转
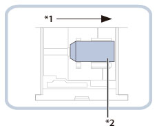
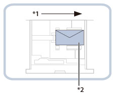
*1 输送方向 *2 打印面向下 打印时,检查装入的纸张的方向是否与打印机驱动程序的“打印设置”屏幕上显示的方向一致。有关详细信息,请参阅联机帮助。(请参阅“打印机驱动程序帮助”) 如果在信封上复印,请在放置原稿之前将其旋转。 如果将ISO-C5旋转90度,在进行输出之前需通过自定义尺寸设置229 x 162 mm。 |
须知 |
使用前必须展平卷起或卷曲的信封。 确保信封叠高度不超过高度限制标记 ( )。可以添加到纸盒的最大信封高度(数量)约为33.5 mm。 根据信封类型和用户操作条件,信封的最大高度(数量)可能有所变化,但作为参考,33.5 mm约为50个信封。 在向纸盒中添加信封时,检查信封的平面。如果信封的前边高于后边,重新添加信封使信封的前边与后边一般高或低于后边,如下图所示。 ![]() *1 纸盒的前面 *2 纸盒的后面 |
注意 |
将纸盒恢复原位时,请小心不要夹住手指,否则可能导致人身伤害。 |
须知 |
在将信封添加到纸盒中之前,必须展平卷曲的信封。 如果添加的信封超过添加限制标记( ),或者未将纸盒完全推入本机中,则无法进行复印或打印。确保信封高度不超过添加限制标记( )。务必检查纸盒是否安装到位。 请勿将纸张或任何其他物品放置在纸盒的留空部分。否则可能导致卡纸。 不添加信封时,请确保将“信封输送器附件-F”恢复原位。使用“信封输送器附件-F”添加信封以外的纸张时,可能导致卡纸。 |