Luogo di installazione

Selezione e configurazione di un luogo di installazione
Struttura del pavimento
Spazio di installazione
Ambiente di installazione
Alimentazione

Selezione e configurazione di un luogo di installazione

Luogo di installazione
Luce solare diretta
Illuminazione
Percorso per la consegna

Luogo di installazione

Non installare la macchina nei seguenti luoghi.
Luoghi eccessivamente polverosi.
Luoghi vicini a materiali volatili o infiammabili, come alcool o solvente.
Luoghi in cui la macchina è esposta a rapidi cambiamenti di temperatura.
Quando la stanza in cui è installata la macchina è fredda ma si riscalda rapidamente, potrebbero formarsi delle gocce d'acqua (condensa) all'interno della macchina. Questo può determinare un notevole peggioramento della qualità dell'immagine copiata, l'impossibilità di acquisire correttamente un originale o l'assenza di immagini stampate nelle copie.
Luoghi vicini a computer o ad altre apparecchiature elettroniche di precisione.
Le interferenze elettriche e le vibrazioni generate dalla macchina durante la stampa possono influire negativamente sul funzionamento delle altre apparecchiature.
Luoghi vicini a televisori, radio o ad altre apparecchiature elettroniche analoghe.
La macchina può interferire con la ricezione dei segnali audio e video. Inserire la spina di alimentazione in una presa dedicata e mantenere il maggiore spazio possibile tra la macchina e le altre apparecchiature elettroniche.
Luoghi vicini a umidificatori a ultrasuoni o a umidificatori a nebulizzazione.
Fare attenzione al layout di installazione e all'ambiente operativo quando si installa la macchina nei seguenti luoghi.
Luoghi vicini ad apparecchiature (*) che rilasciano sostanze volatili.
Le sostanze volatili possono entrare nella macchina e influire sulla qualità dell'immagine.
Se si utilizzano tali apparecchiature, consultare il rivenditore autorizzato Canon o il rappresentante dell'assistenza locale prima dell'uso.
*Esempio: apparecchiature che utilizzano adesivi a caldo (rilegatrici o laminatrici), apparecchiature per aromi, copiatrici diazo ecc.
Installazione di macchine multiple
Se si installano più macchine vicine tra loro, consultare il proprio rivenditore autorizzato Canon o il rappresentante dell'assistenza locale in merito al layout di installazione prima di procedere all'installazione, in modo che la sezione di aspirazione dell'aria di una macchina non sia troppo vicina alla sezione di scarico di altre macchine.
Non rimuovere i piedini di livellamento.
Non rimuovere i piedini di livellamento dopo l'installazione della macchina.
Se si posiziona un carico sulla parte anteriore della macchina e i cassetti carta, i paper deck e le unità all'interno dell'unità principale sono estratti, la macchina potrebbe cadere in avanti. Per evitare che questo accada, assicurarsi che i piedini di livellamento siano in posizione.

Luce solare diretta

Non installare la macchina in un luogo esposto a luce solare diretta.
Se non è possibile fare diversamente, proteggere la macchina con delle tende. Assicurarsi che le tende non ostruiscano le prese d'aria o le feritoie di ventilazione della macchina, e che non interferiscano con il cavo elettrico o l'alimentazione.

Illuminazione

Si raccomanda di installare la macchina in un luogo con almeno 500 lux (75 cm dal pavimento) per il normale funzionamento e la manutenzione.

Percorso per la consegna

Per informazioni sulle dimensioni e sul peso di imagePRESS C270 / C265 e sulle relative opzioni, vedere Dimensioni, pesi e larghezza del corridoio richiesti per la rotazione di ciascuna periferica. Verificare che lo spazio libero e la resistenza del pavimento richiesti siano sufficienti per poter consegnare la macchina.

Struttura del pavimento

Struttura del pavimento
Valori standard della struttura del pavimento
Metodi di misurazione per ogni valore standard

Struttura del pavimento

Il pavimento su cui la macchina sarà installata deve avere un carico sostenibile di almeno 400 kg/m2. Se il pavimento non ha questo livello di carico, la macchina può essere installata vicino a un pilastro o a una trave. Consultare il proprio imprenditore edile prima di installare la macchina.
Il peso della macchina sarà concentrato principalmente sul pavimento attraverso il regolatore e le ruote. Raccomandiamo l'uso di un tappetino per distribuire il peso.
Raccomandiamo anche l'uso di un tappetino quando si installa la macchina su un pavimento in legno o moquette. Per informazioni sui tappetini, contattare il proprio rivenditore.
Non installare la macchina su un pavimento o una piattaforma instabile.

Valori standard della struttura del pavimento

Assicurarsi di installare imagePRESS C270 / C265 e le apparecchiature opzionali su un pavimento che soddisfa il seguente requisito.
Resistenza del pavimento
La quantità di sprofondamento nel pavimento deve essere di 4 mm o meno, se si applica su di esso un carico di 400 kg/m2.
Se questo requisito non è soddisfatto, utilizzare parzialmente le piastre per pavimento.
* Utilizzare le piastre per pavimento se la macchina è installata su un tappeto, un pavimento in legno o in gomma.
* A seconda della quantità di sprofondamento nel pavimento, impilare le piastre per pavimento per ridurre la differenza di altezza dei giunti.
Planarità del pavimento
La planarità in un'area rettangolare arbitraria di 510 mm x 500 mm deve essere di 4 mm o meno.
Intervallo verticale pavimento
L'intervallo verticale tra due punti arbitrari di 1.000 mm di intervallo deve essere di 3 mm o meno.
(La quantità di sprofondamento nel pavimento non è inclusa.)
Inclinazione del pavimento
L'inclinazione tra due punti arbitrari di 1.600 mm di intervallo deve essere di 3 mm o meno.

Metodi di misurazione per ogni valore standard

I valori standard sono misurati secondo le seguenti procedure.
Utilizzare una piastra di ferro come piastra per pavimento, di 890 mm x 487,5 mm di dimensioni, 13 kg di peso e 4 mm di spessore.
Carico supportato dal pavimento
Confermare le specifiche del carico supportato dal pavimento all'appaltatore dell'edificio in cui è prevista l'installazione della macchina.
Resistenza del pavimento
Preparare una piastra per pavimento e metterla sul luogo in cui si prevede di installare la macchina. Misurare la quantità di sprofondamento nel pavimento quando due adulti (circa 150 kg) salgono sulla piastra. Da questa misurazione, stimare la quantità di sprofondamento nel pavimento quando la macchina è installata facendo un calcolo proporzionale.
 
Metodo di calcolo
Ogni parametro è specificato come segue:
t: altezza dal pavimento alla superficie superiore della piastra per pavimento
Δt: altezza dal pavimento alla superficie superiore della piastra del pavimento quando viene applicato il carico
Ts (mm/kgf): costante della quantità stimata di sprofondamento nel pavimento
Ts (ME): quantità di sprofondamento nel pavimento dove questa macchina è installata

Prima di tutto, calcolare la costante della quantità stimata di sprofondamento nel pavimento.
Ts (mm/kgf) = (t - Δt)/150
Utilizzando questa costante, stimare la quantità di sprofondamento nel pavimento dove è installata questa macchina.
Ts (ME) = (272 (kgf)/2) x Ts (mm/kgf)
Esempio
Nel caso di
t = 4 mm Δt = 3 mm
La costante della quantità stimata di sprofondamento nel pavimento è calcolata come mostrato di seguito.
(4 - 3)/150 = 0.006
In questo esempio, la quantità stimata di sprofondamento nel pavimento dove è installata questa macchina è di 0,816 mm con la seguente formula.
Ts (ME) = (272 (kgf)/2) x 0.006 = 0.816
Se si collega il POD Deck Lite-C opzionale all'unità principale, POD Deck Lite-C deve essere installato in una posizione più in basso rispetto all'unità principale. Come per la descrizione precedente, la differenza tra la quantità stimata di sprofondamento nel pavimento dove è installata l'unità principale e quella nel pavimento dove è installato POD Deck Lite-C deve essere 4 mm o meno. Inoltre, se POD Deck Lite-C è installato in una posizione più in alto rispetto all'unità principale, mettere le piastre del pavimento solo sotto l'unità principale per ridurre la differenza.
Planarità del pavimento
Mettere una piastra sul pavimento dove si prevede di installare la macchina, e posizionare la livella semplificata al centro di essa. Per rendere orizzontale la piastra del pavimento, inserire alcuni distanziatori (monete) sotto i punti A o B della piastra del pavimento, come mostrato nell'illustrazione qui sotto. Calcolare la planarità del pavimento dallo spessore dei distanziatori e dal loro numero.
Metodo di calcolo
Usare monete che hanno lo stesso spessore di un distanziatore.
Ogni parametro è specificato come segue:
t (mm): spessore del distanziatore
a: numero dei distanziatori inseriti sotto A
b: numero dei distanziatori inseriti sotto B
Quando a > b, la planarità del pavimento si calcola con la seguente formula.
t x a (mm)
Esempio
Le monete di 1 mm di spessore sono usate come distanziatore.
Se si inseriscono due distanziatori sotto A e non si inserisce nulla sotto B per rendere orizzontale la piastra del pavimento, la planarità del pavimento è di 2 mm.
Intervallo verticale del pavimento
(Questo metodo è usato quando
c'è un gradino nel pavimento.)
Sistemare due piastre per pavimenti una accanto all'altra e metterle sul pavimento dove si prevede di installare la macchina. Secondo il metodo di misurazione della "Planarità del pavimento", mettere una piastra del pavimento in orizzontale. Poi, mettetene un'altra orizzontalmente allo stesso modo. Misurare la differenza di altezza tra le due piastre del pavimento.
Attenzione alla misurazione
Mettete le due piastre del pavimento con il lato lungo allineato.
Inclinazione del pavimento
(Questo metodo è usato quando il pavimento è leggermente inclinato.)
Sistemare due piastre per pavimenti una accanto all'altra e metterle sul pavimento dove si prevede di installare la macchina. Secondo il metodo di misurazione della "planarità del pavimento", mettere una piastra in orizzontale. Successivamente, inserire i distanziatori (monete) sotto un'altra piastra del pavimento per posizionare la piastra orizzontalmente alla stessa altezza di quella che precedentemente posizionata. In questo caso, inserire i distanziatori nella posizione arbitraria del bordo della piastra del pavimento. Misurare l'inclinazione del pavimento con lo spessore dei distanziatori più lontani dal punto di riferimento (il punto determinato come punto di riferimento dell'altezza).
(Si veda l'immagine sottostante.)
Attenzione alla misurazione
Mettete le due piastre del pavimento con il lato lungo allineato.
Metodo di calcolo
Usare monete che hanno lo stesso spessore di un distanziatore. Ogni parametro è specificato come segue.
t (mm): spessore del distanziatore
a: numbero di distanziatori
La planarità del pavimento si calcola con la seguente formula.
S = t x a (mm)
Esempio
Le monete di 1 mm di spessore sono usate come distanziatore. Se si inseriscono tre distanziatori sotto la posizione più lontana dal punto di riferimento, l'inclinazione del pavimento è di 3 mm (= 1 mm x 3).

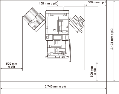
Spazio di installazione

Spazio necessario per l'installazione
Dimensioni, pesi e larghezza del corridoio richiesti per la rotazione di ciascuna periferica

Spazio necessario per l'installazione

Prevedere uno spazio sufficiente su ogni lato della macchina per un funzionamento senza limitazioni.
Inoltre, è necessario uno spazio di 5 mm tra ogni apparecchiatura per collegarle.

Configurazione standard (minima)

Quando è collegato il Copy Tray-R:

Spazio necessario sul retro

Assicurarsi di installare la macchina ad almeno 100 mm di distanza dalla superficie della parete per non ostacolare le operazioni sul retro della macchina stessa.
Lasciare libero il seguente spazio in base alla configurazione delle opzioni della macchina.
Quando sono collegati Stack Bypass Alignment Tray-D e Vassoio per l'alimentazione del Banner-B: 200 mm o più
Quando si collega una delle opzioni di uscita/alimentazione indicate in "Configurazione completa (massima) di tutte le opzioni": 800 mm o più

Spazio richiesto nella parte anteriore e sinistra/destra

Assicurarsi di installare la macchina ad almeno 500 mm di distanza dalla superficie della parete per lasciare spazio libero per le operazioni di manutenzione
Lasciare libero il seguente spazio in base alla configurazione delle opzioni della macchina.
Quando si collega una delle opzioni di uscita/alimentazione indicate in "Configurazione completa (massima) di tutte le opzioni": 1.000 mm o più

Configurazione completa (massima)

Per le seguenti configurazioni della periferica
POD Deck Lite-C
Document Insertion Unit-R
Multi Function Professional Puncher-C
Paper Folding Unit-K
Booklet Finisher-AG
Booklet Trimmer-G

Spazio necessario sul retro

Assicurarsi di installare la macchina ad almeno 800 mm di distanza dalla superficie della parete per non ostacolare le operazioni sul retro della macchina stessa.
Lasciare libero il seguente spazio in base alla configurazione delle opzioni della macchina.
Quando nessuna delle opzioni di uscita/alimentazione indicate in "Configurazione completa (massima) di tutte le opzioni" viene collegata: 500 mm o più

Spazio richiesto nella parte anteriore e sinistra/destra

Assicurarsi di installare la macchina ad almeno 1.000 mm di distanza dalla superficie della parete per lasciare spazio libero per le operazioni di manutenzione.
Lasciare libero il seguente spazio in base alla configurazione delle opzioni della macchina.
Quando nessuna delle opzioni di uscita/alimentazione indicate in "Configurazione completa (massima) di tutte le opzioni" viene collegata: 500 mm o più

Dimensioni, pesi e larghezza del corridoio richiesti per la rotazione di ciascuna periferica

Nome prodotto
Dimensioni (L x P x A)
Grammatura
Larghezza del corridoio necessaria per la rotazione*1
imagePRESS C270 / C265
689 mm x 937 mm x 1.185 mm
Circa 255 kg
(escluse le cartucce di toner)
1.663 mm
POD Deck Lite-C
656 mm x 686 mm x 570 mm
Ca. 68 kg
1.449 mm
Paper Deck Unit-E
363 mm x 630 mm x 572 mm
Ca. 34 kg
1.227 mm
Staple Finisher-AG
800 mm* x 792 mm x 1.239 mm**
*Quando il vassoio ausiliario è esteso: 890 mm
*Quando Vassoio per l'alimentazione del Banner-B è incluso: 1.136 mm
*Quando Finisher Long Sheet Catch Tray-B è incluso: 1.490 mm
**Quando Vassoio per l'alimentazione del Banner-B è incluso: 1.317 mm
**Quando Finisher Long Sheet Catch Tray-B è incluso: 1.317 mm
Ca. 130 kg
1.626 mm
Booklet Finisher-AG
800 mm* x 792 mm x 1.239 mm**
*Quando il vassoio ausiliario è esteso: 1.060 mm
*Quando Vassoio per l'alimentazione del Banner-B è incluso: 1.136 mm
*Quando Finisher Long Sheet Catch Tray-B è incluso: 1.490 mm
**Quando Vassoio per l'alimentazione del Banner-B è incluso: 1.317 mm
**Quando Finisher Long Sheet Catch Tray-B è incluso: 1.317 mm
Ca. 180 kg
1.626 mm
Document Insertion Unit-R
746 mm x 793 mm x 1.407 mm
Ca. 61 kg
1.589 mm
Paper Folding Unit-K
336 mm x 793 mm x 1.190 mm
Ca. 71 kg
1.361 mm
Booklet Trimmer-G
1.835 mm x 794 mm x 1.044 mm
(Nastro non incluso, vassoio di consegna incluso)
2.094 mm x 794 mm x 1.044 mm
(Nastro e vassoio di consegna inclusi)
Ca. 152 kg
2.499 mm
Multi Function Professional Puncher-C
445 mm x 795 mm x 1.040 mm
Ca. 102 kg
1.411 mm
Staple Finisher-AC
527 mm* x 623 mm x 1.099 mm
*Quando il vassoio ausiliario e il vassoio di rotazione sono estesi: 656 mm
*Quando Vassoio per l'alimentazione del Banner-B è incluso: 774 mm
Ca. 36 kg
1.316 mm
Booklet Finisher-AC
527 mm* x 623 mm x 1.099 mm
*Quando il vassoio ausiliario e il vassoio di rotazione sono estesi: 656 mm
*Quando Vassoio per l'alimentazione del Banner-B è incluso: 774 mm
Ca. 60 kg
1.316 mm
Document Insertion / Folding Unit-K
662 mm x 679 mm x 1.242 mm
Ca. 76 kg
1.448 mm
Copy Tray-R
244 mm* x 382 mm x 175 mm**
*Quando il vassoio ausiliario è esteso: 420 mm
*Quando Vassoio per l'alimentazione del Banner-B è incluso: 711 mm
**Quando Vassoio per l'alimentazione del Banner-B è incluso: 402 mm
Circa 1,1 kg
(Vassoio per l'alimentazione del Banner-B escluso)
-
Copy Card Reader
88 mm x 96 mm x 40 mm
(esclusi kit di collegamento e cavo)
Circa 200 g
(inclusi kit di collegamento e cavo)
-
*1 La larghezza minima richiesta per la tornitura è la lunghezza diagonale della macchina (apparecchiatura) + circa 500 mm.

Ambiente di installazione

Temperatura e condizioni di umidità
Gradiente di temperatura
Ventilazione
Limitazioni altitudine

Temperatura e condizioni di umidità

Non installare la macchina in luoghi con temperature o umidità troppo alte o basse, come luoghi in cui sono presenti rubinetti, scaldabagno, umidificatori, condizionatori d'aria, stufe o radiatori.
Durante il funzionamento, l'intervallo di umidità ammissibile è dal 15 al 60% (con una temperatura ambiente da 20 a 27 ˚C).
C'è il rischio che l'alimentazione della carta e la qualità dell'immagine possano risentirne se la macchina viene usata in un luogo che non soddisfa queste specifiche.
Il valore di umidità consentito per la conservazione della carta è compreso tra il 15 e il 60 % (con una temperatura ambiente da 20 a 27 °C). Se si conserva la carta in luoghi che non soddisfano queste specifiche si potrebbe compromettere la qualità dell'immagine e l'alimentazione della carta.

Gradiente di temperatura

L'uso di un condizionatore d'aria durante l'inverno o gli sbalzi di temperatura improvvisi possono influire negativamente sul posizionamento dell'immagine, in quanto ciò può causare la piegatura o la contrazione della carta, e un malfunzionamento della macchina a causa della condensa. Per evitare questi problemi, controllare il gradiente di temperatura in modo che non superi i 10 ˚C/H.

Ventilazione

Assicurarsi che l'aria venga cambiata almeno 2 volte/h e che ci siano almeno 30 m3 di spazio nel luogo in cui verrà installata la macchina.
Questa macchina genera una piccola quantità di ozono, e così via, durante il normale funzionamento. Sebbene la sensibilità all'ozono, e così via, possa variare, questa quantità non è pericolosa. L'ozono, e così via, può essere maggiormente percepibile durante l'uso prolungato o lunghe sessioni di produzione, soprattutto in stanze poco ventilate. Si consiglia di utilizzare la macchina in una stanza opportunamente ventilata per mantenere un ambiente di lavoro confortevole in aree dove sono presenti macchine. Evitare inoltre luoghi in cui si esporrebbero persone alle emissioni della macchina.

Limitazioni altitudine

Installare questa macchina a un'altitudine di 4.000 m o meno.
*Pressione atmosferica a 4.000 m: 607,8 hPa (valore di riferimento)

Alimentazione

Condizioni alimentazione
Consumo massimo di energia

Condizioni alimentazione

Utilizzare questi componenti entro le specifiche di alimentazione elencate di seguito.
L'alimentazione per i componenti non elencati nella tabella è fornita da imagePRESS C270 / C265 o da altri componenti.
Nome prodotto
Alimentazione
Cavo alimentazione/
Specifiche di connessione
Lunghezza del
cavo di alimentazione
imagePRESS C270
220-240 V, 50/60 Hz, 11A
CEE 7/7
2.000 mm
imagePRESS C265
220-240 V, 50/60 Hz, 10A
CEE 7/7
2.000 mm
POD Deck Lite-C
220-240 V, 50/60 Hz, 1,2 A
CEE 7/7
2.000 mm
Paper Deck Unit-E
Dall'unità principale
-
-
Staple Finisher-AG
220-240 V, 50/60 Hz, 8 A
CEE 7/7
2.000 mm
Booklet Finisher-AG
220-240 V, 50/60 Hz, 8 A
CEE 7/7
2.000 mm
Document Insertion Unit-R
100-240 V, 50/60 Hz, 1,0 A
CEE 7/7
2.000 mm
Paper Folding Unit-K
Dal finisher
-
-
Booklet Trimmer-G
Dal finisher
-
-
Puncher Unit-BT
Dal finisher
-
-
Puncher Unit-BU
Dal finisher
-
-
Multi Function Professional Puncher-C
230 V, 50 Hz, 2,0 A
CEE 7/7
2.400 mm
Staple Finisher-AC
Dall'unità principale
-
-
Booklet Finisher-AC
Dall'unità principale
-
-
Document Insertion / Folding Unit-K
100-240 V, 50/60 Hz, 1,0 A
CEE 7/7
2.000 mm
2/4 Hole Puncher Unit-A
Dal finisher
-
-
4 Hole Puncher Unit-A
Dal finisher
-
-

Consumo massimo di energia

Il consumo massimo di energia di imagePRESS C270 / C265 e altri componenti elencati sotto.
Nome prodotto
Consumo massimo di energia
imagePRESS C270
2.500 W o meno *1
imagePRESS C265
2.000 W o meno *1
POD Deck Lite-C
480 W o meno
Paper Deck Unit-E
Incluso nell'unità principale
Staple Finisher-AG
500 W o meno
Booklet Finisher-AG
500 W o meno
Document Insertion Unit-R
120 W o meno
Paper Folding Unit-K
Incluso nel finisher
Booklet Trimmer-G
300 W o meno
Puncher Unit-BT
Incluso nel finisher
Puncher Unit-BU
Incluso nel finisher
Multi Function Professional Puncher-C
550 W
Staple Finisher-AC
Incluso nell'unità principale
Booklet Finisher-AC
Incluso nell'unità principale
Document Insertion / Folding Unit-K
120 W o meno
2/4 Hole Puncher Unit-A
Incluso nel finisher
4 Hole Puncher Unit-A
Incluso nel finisher
*1 Incluse tutte le apparecchiature opzionali alimentate dall'unità principale
CW97-008